在线投稿 设为首页  
     
    首页 >  观点 > 本站独家  > 正文
乡村风格讲求的是一种切身体验
——室内设计师季中华的作品
发布时间: 2010-03-19   来源:畅言网archcy 
上一页 1 2 下一页  

作者照片

也许,很多人对美式的定义不大相同。但是有一点是一致的:那就是浪漫的格调与优闲的雅致谁都不会厌烦的……

项目介绍

所属地点:大钟寺

小区名称及地址:we-house

户型: 别墅

面积: 450平方米

业主家庭成员:三口之家

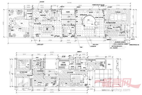
设计平面图

设计说明

作为旅美多年的业主夫妇,业主非常喜欢浪漫的乡村风格,在讨论了很久之后,我们在设计上统一了格调与配饰的内容。

具体的方案在设计和材料上并没有严格的区分定义,乡村风格讲求的是一种切身的体验,是从家具上感受到的那种宁静和闲适。我们仔细的选用欧洲风格园艺用品、欧式手绘家具和瓷器、家用陶瓷、搪瓷制品、钟表、相框、画框等等。

家具我们定位是美式“伊森艾伦”品牌,选看了大量图册,并且观看了样板。在合适价位于风格之间权衡了好久,最后选出的是我们认为完美的东西……配饰上,我们的设计风格一定要混搭,各式装饰元素会让人耳目一新,我们精挑细选,在每面墙上都去考虑挂什么。这样下来看似不起眼的一个小摆设其实都是费了心血的。

责任编辑: Ryan
上一页 1 2 下一页  
评论
昵称: 

都市实践

CCDI

五合国际

筑博设计

易兰

维思平

 
关于我们 | 联系方式 | 免责声明 | 广告服务 | 给我留言 | 在线投稿
建筑畅言网版权所有
京ICP备11034636号 京ICP证090740号 京公网安备110102003037号
E-mail: editor@archcy.com 电话:86 10 56064666 传真:86 10 63107850
畅言网微信