|
二、杭州唐宫海鲜舫室内设计


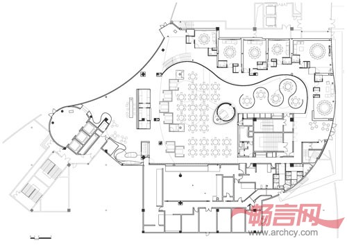
规划图
餐厅位于杭州新城区大型商场的顶层,拥有将近9米的层高以及南侧开阔的视野。我们选用了复合的竹板作为主材料,成为强调传统与现代相结合的设计主题。


在大厅中,利用原有的层高优势,我们将部分包间悬吊于顶上,创造出高低层次的趣味性并丰富了空间的视觉感受。因为在原有的建筑条件下,大厅中心巨大的核心筒和侧边悬挑的半椭圆形体块使空间显得零碎杂乱,我们以一片用薄竹板编织、从墙面延伸至天花的巨大透空顶棚,将空间重新塑造。如波浪起伏的竹顶棚,构筑了大厅里戏剧般的场景。而视线穿过透空的竹网,不仅保持了原有的层高优势,亦使得上下层有了微妙的互动关系。在原来的核心筒外,我们以透光竹板包覆四壁形成灯箱,则使得原本沉重的混凝土体量变为空间中轻盈的焦点。


入口门厅亦延续竹的主题。墙面覆以竹材,并顺应原有的墙体处理成如波浪状流动的弧面,除了与大厅的顶棚相呼应外,也具有空间导引的功能,并带给顾客一进入餐厅就有耳目一新的感受。
包间的设计则强调同中有异的区别。一层的包间较大,从天花到墙面的折板和两侧镂花透光墙面是共同的基础语汇,但每间各自不同的折板角度和镂花图案,则使得各个房间有了彼此相异的面貌。南侧夹层上方的包间略小,藉由特殊的曲面顶棚造型和简洁单纯的竹材墙面,营造出空间趣味并显其大方。至于作为空间重点的悬挂包间,以空桥和侧边走道连接,半透明的墙面形成隐约的内外关系,使不论在其内或外的人都产生特殊的空间体验。




在这次的设计中,我们希望藉由对新型竹材的不同应用方式,能塑造出彼此相异却连贯、一体的空间感受;并在追求空间创意的同时,也保持了对当地文化的尊重。
项目名称:杭州唐宫海鲜舫
地址:杭州市江干区富春路701号万象城六楼
业主:香港唐宫饮食集团
规模:2460平米
材料:竹、复合木板、水磨石
建筑设计:非常建筑
主持设计师:张永和
项目负责人:林宜萱
设计团队:于跃、吴瑕、王兆铭
设计周期:2009.5-2010.7
|