在线投稿 设为首页  
     
    首页 >  地产界 > 项目  > 正文
极具视觉冲击力的“巨型门架”
——中洲中心二期项目简介
发布时间: 2010-07-01   来源:畅言网  转载自:广州市城市规划勘测设计研究院 
建筑东北面的形象入口与防护绿带景观整体设计,运用大地景观艺术设计手法形成生动有趣的地域图案,使建筑的第五立面更突出。

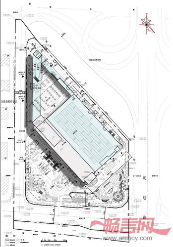
总平面图

工程概况

中洲中心二期位于琶洲会展商圈东南面,定位为轻工产品出口厂家及外贸公司常年展示商品的国际性专业市场。

模型照片

项目处于一个既浸润着广州传统文化而又拥有成熟的国际贸易的环境中。基地西面是已建成的中洲中心一期和琶洲教师新村,北面为光大国际采购中心,东侧紧挨科韵南立交,东北侧为立交防护绿带,与琶洲的文化历史标志琶洲古塔隔路相对,南隔黄埔涌遥望广州市的南肺“万亩果园”。项目建设用地面积51739平方米,总建筑面积为173689平方米,建筑高度83.25米;地上22层,地下2层。

设计构思

结合北窄南宽的锲状用地现状,以高效、简洁为原则将建筑物沿地块的一条长边平行布置,使地块自然分隔成三个广场:商场展示区前广场、办公楼前广场和卸货区广场。根据高效、便捷的原则组织疏导人流、车流,流线清晰明确,互不交叉干扰,同时使建筑周边享有高素质的空间。

裙楼是一个水平向的长方体,保证了展示空间的完整性。垂直向的板式塔楼交通核心布置于两端,南北偏45°朝向使办公楼享有琶洲公园与万亩果园的优美景观。基地西北入口的观光塔与塔楼通过120m跨度的高空观光走廊连接,形成巨型“门”架,与琶洲塔遥相呼应,构筑了广州南大门的形象。

效果图

巨型门架下的灰空间是展示广场,结合跌水景观局部下沉,将人流引入负一层商场。建筑东北面的形象入口与防护绿带景观整体设计,运用大地景观艺术设计手法形成生动有趣的地域图案,使建筑的第五立面更突出。

效果图

造型特色

立面设计运用大垮度的标志性门形构架隐喻“广州之门”,形成极具视觉冲击力的标志性形象。通过力度感十足的钢构架贯通整体,尺度恢宏,增强了建筑的体量感和造型的整体性,形成建筑本身独特的个性形象。

责任编辑: Ryan
评论
昵称: 
RCC关系网

都市实践

CCDI

五合国际

筑博设计

易兰

维思平

 
关于我们 | 联系方式 | 免责声明 | 广告服务 | 给我留言 | 在线投稿
建筑畅言网版权所有
京ICP备11034636号 京ICP证090740号 京公网安备110102003037号
E-mail: editor@archcy.com 电话:86 10 56064666 传真:86 10 63107850
畅言网微信