在线投稿 设为首页  
     
    首页 >  地产界 > 项目  > 正文
设计节能省地型集合式住宅
——上海闵行区浦江镇1号基地6号地块-E8-01地块设计说明
发布时间: 2010-09-03   来源:畅言网  转载自:上海博骜建筑工程设计有限公司 
上一页 1 2 3 下一页  
通过建筑的南低北高、前后错位表现和谐的空间变化,在建筑布局上还有意把沿河建筑面向河道,自然达到引水入区、曲水环绕、借景造势的目的,从而通过增强沿河景观带的引导作用,提升小区的品位。

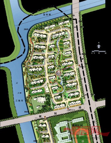
项目总规划图

上海市配套商品房建设项目是市委、市府为平稳推进城市建设与发展,优化房地产市场结构,有效满足困难动迁家庭购房需求而实施的重大举措,是一项为民工程和实事任务。充分体现了政府执政为民、心系百姓的精神,真正使中低收入阶层感受到政府为民办实事带来的温暖,是上海市政府建设社会主义和谐社会的实事工程。

总体构思

方案设计根据基地实际条件,顺应控制性详规中对基地内部主要交通道路的设计理念,对住宅组团进行了深入设计。组团围绕小区中心绿化设置,相互辉映,形成整个小区内部有机的景观组团,本地块三面环水,一侧环路,水应是该小区的重要元素。突出水景特色,打造水上建筑,是本案的重点,在小区沿三鲁河布置有7层-14层住宅,通过建筑的南低北高、前后错位表现和谐的空间变化,在建筑布局上还有意把沿河建筑面向河道,自然达到引水入区、曲水环绕、借景造势的目的,从而通过增强沿河景观带的引导作用,提升小区的品位,也使地块内组团绿化与周边水系相互渗透,并提供最多住户优美的自然景观。

本小区出入口根据控规要求设置,设有两个出入口,主要布置在规划道路上,与组团内环道相连。形成小区主要的中环骨架交通系统。

建筑规划图

责任编辑: Ryan
上一页 1 2 3 下一页  
评论
昵称: 
RCC关系网

都市实践

CCDI

五合国际

筑博设计

易兰

维思平

 
关于我们 | 联系方式 | 免责声明 | 广告服务 | 给我留言 | 在线投稿
建筑畅言网版权所有
京ICP备11034636号 京ICP证090740号 京公网安备110102003037号
E-mail: editor@archcy.com 电话:86 10 56064666 传真:86 10 63107850
畅言网微信