如恩设计研究室(Neri&Hu)作品展示
来源:网友栏外人投稿 2015-01-09

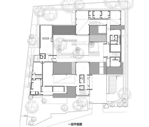
项目名称:新加坡重叠房
建筑师:如恩设计研究室(Neri&Hu)
项目地点:新加坡
项目面积:2,888㎡
项目时间:2012年1月
总部位于中国上海的如恩设计研究室在新加坡的第一个建筑项目日前竣工。为了向这一私人住宅项目业主的中国根致敬,如恩设计研究室的建筑方案从中国北方地区极具地方特色的四合院汲取灵感。为了满足这个三代同堂共四个家庭共同居住的要求并使居所适应于热带气候,如恩设计研究室重新诠释了这一传统象征。
如恩并没有简单采用四合院的传统形态,而将其从固有“回”字型演化为两个优雅的L形体块,将内部的庭院延伸至外围的自然环境中去。室外与室内的连贯性,典型的热带居住特征,都在这里得以体现。将私密居住空间从地面提升至二层,底层地表面从室内延伸至室外形成了建筑的基座。一楼整层的透明玻璃外墙在使整个景观穿透入室内的同时居住的空间也开始向花园和泳池延伸,从感受上“占据”了室外。沿着环绕整栋建筑的蜿蜒的小径可以一览整个地块,同时水景将整座建筑与周围的景观也密不可分地融合在一起。其效果是,伸展开的每一寸土地都被带入进来,整个区域都是“家”。
外立面上多层次材料的重叠运用是增强概念连续性的关键,从被玻璃围合的铺满平坦VALS石英岩的公共区域到上层包围着木百叶的私密空间。染黑柚木的百叶窗遮住了位于二层的十三间卧室,然而每间卧室的主人都可以根据天气或心情自行调节百叶窗的开启角度从而调节他们与外界的联系。在卧室另一面的走廊上是白色橡木制成的穿孔屏风,可以折叠也可以收起,让整个建筑有完全通透的可能性。双层挑空的空间呈现出不同材料所产生的层次感,同时也促进了个人与公共空间的相互交流。室内与室外,庭院和房子,私人空间与公共空间的界限被模糊了,如恩设计的这栋2,888㎡的房子通过一系列复杂的空间体验解读了住所、家庭和家庭生活之间的综合形态。






发表评论
最新评论
投稿