刘力作品展
来源:网友Hadenough投稿 2015-02-03

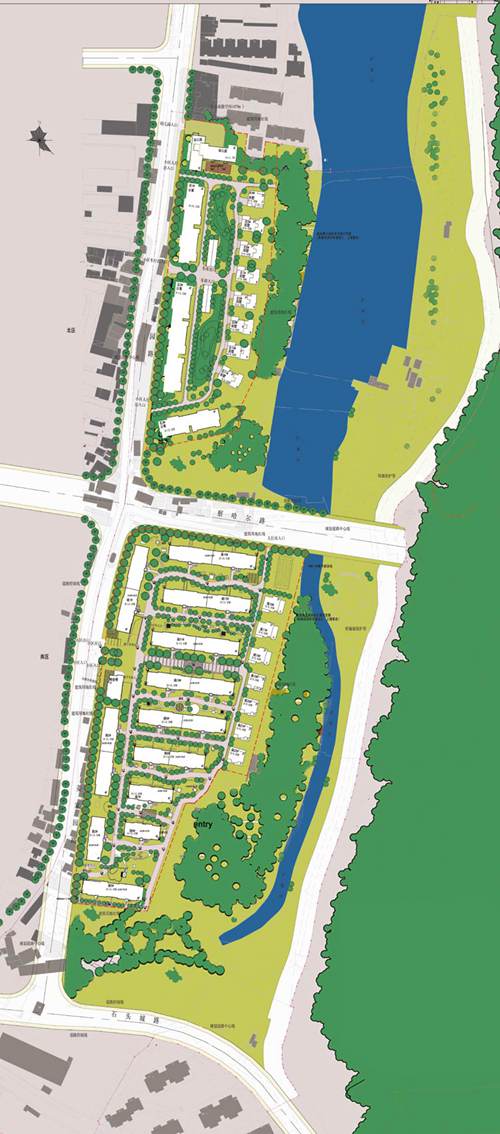
南京锋尚国际公寓
设计者:刘力、严涛
设计类别:公寓建筑
建设地点:江苏 南京
场地面积:5.3ha
建筑面积:75 000m2
完成时间:2006年
获奖:2005年“百年住宅优秀作品奖”、“住宅科技创新设计优秀奖”
南京锋尚国际公寓坐落于南京下关区小桃园风貌区,“狮子山—清凉门”风光带中段,南接秦淮河,东临明代古城墙、挹江门。由于毗邻明城墙遗址公园,地块周围树木林立,河水环绕,具有得天独厚的山、水、古迹景观资源。
规划特点:
根据建筑密度、限高的要求,结合地块自然特点,规划设计中将地块分为南北两个区,北区以别墅为主,南区以公寓为主,通过中心广场使得两区巧妙相连。另外,在规划设计中每个细微之处都渗透着生态环保可持续性的设计理念,如:
—在可建用地内保留了大量原有树木,并将其有机地组织到新居住环境中,给居住者带来最大范围视觉享受的同时,也保护了环境;
—通过对雨水储存利用以及对污水回收处理再利用保证小区水系统平衡;
—地下车库中设置顶板开窗,为其创造良好的自然采光及通风条件,大量节约了电能。
建筑单体:
总建筑面积约为75000m2。建筑的形体尽量紧凑,保持良好的体形系数,严格控制各种不同朝向的开窗面积比例,以便配合内部节能系统的实施,考虑毗邻古城墙遗址这一设计元素,建筑立面上采用白墙灰瓦的江南设计手法,使得建筑与环境达到完美统一。
生态节能设计主要有以下几方面:
从建筑设计到系统设计都是一个有机的体系,成系统有针对地应用技术,并且相互之间有机组合,实现最佳搭配。
建筑立面整洁简单,无繁多的凹凸变化,保证了较低的体形系数和较少的传热面积,确保建筑自身的低能耗。
优异的建筑围护结构和热工性能、高性能的玻璃窗、所有的冷桥经过精心处理,保证了整个建筑极低的能耗,冬季采暖仅需7 W/m2。
采用遮阳效果最好的保温铝合金卷帘外遮,在保证采光及冬季日照的前提下,极大削弱了太阳辐射热量,降低了空调能耗。
采用可再生能源的地源热泵系统作为冬季供热、夏季供冷的冷热源系统,同时提供生活热水,比常规系统能耗降低30%~50%。
毛细管辐射采暖制冷空调系统及置换式新风系统提供非常高的舒适度,同时系统运行比常规系统节能20%~30%,并且其利用的是低品位的冷热源,与配套的地源热泵系统配合,可达到最佳节能效果。
通过对太阳能的利用,结合太阳能集热板供热和太阳能光伏发电两种形式,满足了整个建筑微能耗需求,实现了能源的自给自足。





发表评论
最新评论
投稿



