|
.jpg)
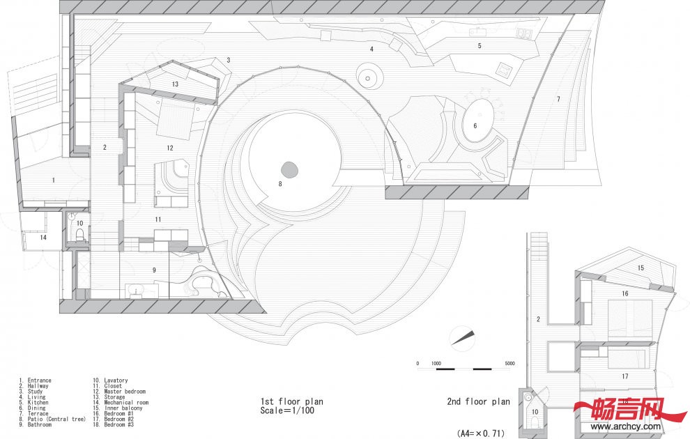
这个超大贝壳形状的住宅位于森林中间,具体很难说这是一个什么结构,它也不像周围的山洞和岩石——它不是自然的产物,也不是遗迹。独特的框架和形状让它成为一个在完全不同地方的完全不同用途的物体。
.jpg)
"我们希望可以居住多年的地方,而且它要能够与自然协调,所以我们想出了这个漂浮在地面上的巨大贝壳型住宅。
.jpg)
与自然协调并不意味着是自然的产物——只需要共生就可以了。这个建筑能够“生存”下来是因为它能够忍受自然环境。通过将居住空间与野外分别开来和提高建筑本身的质量,住宅才从自然中“生存”下来,并为人们提供一个舒适的环境。"Artechnic建筑事务所的设计师说。
.jpg)
.jpg)
.jpg)
.jpg)
.jpg)
.jpg)
.jpg)
.jpg)
.jpg)
.jpg)
|