|

南立面 - 宾馆入口
此工程是对杭州一个旧工厂进行翻修改建,将它改造成一个高质量的酒店及办公综合楼。
项目工期:2010 - 2013年

北立面 - 餐馆和办公楼入口
此项目的建筑场地是原杭州机械厂,它的设计目标是:建造一座楼房,让它的外观要与这里工业区的性质相互融合,而内部则进行现代美学设计。
新天地工厂将会被改造成一个高质量的、及办公、零售、酒店和多用途区域为一体的综合楼。

西北角 - 购物长廊
“沿用原工厂的结构和特色是我们设计理念中最重要的一部分。为了完成对楼内空间的改造,分布在四个楼层上的新空间按照外部的楼层分布进行安排,而建筑的中心区域 --- 宽敞的中庭则保留了下来。中庭的长度与建筑物内部空间的长度是一致的,而在高度上,它也是跨越了整座楼高度的空间。漂亮的钢筋结构屋顶也保留了下来,但是建筑师在起上面又添加了一个玻璃屋顶,这样便让楼内有充足的自然光线,同时也让楼内和自然连在一起。”Peter Ruge事务所的建筑师说。

酒店和办公楼之间的室内花园
建筑及周围景观的能量以波浪的形式流入到大厅里,这为整个建筑加入一些美丽元素。
原建筑南北两侧的混凝土幕墙和玻璃都会被移除。新的钢架结构在旧建筑外墙前面一米,就工厂的旧钢漏斗也会保留下来。标准的钢架结构与建筑的水平和垂直网格相互呼应,而每一层钢架结构的添加部分使墙壁与原建筑砖墙更好的连接起来。

带有水池花园和酒吧的酒店大厅
这些钢架结构形成了大楼的双层幕墙。外面一层是强化玻璃,玻璃之间有排气缝隙;里面一层则是用中空玻璃做成的滑动门。在南北两个立面附近的道路上就可以看到建筑上两层高的外层钢架结构和一个LED多媒体大屏幕。

大厅鸟瞰图
这个新幕墙的设计不仅是现代设计和就工厂建筑相互融合的典范,它也开创了一种“既保留历史元素又加入现代元素”的独特建筑语言。

带有水池花园和酒吧的办公楼大厅1

带有水池花园和酒吧的办公楼大厅2

原建筑1

原建筑2

原建筑3

设计理念及建筑结构图

方案总平面图

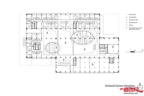
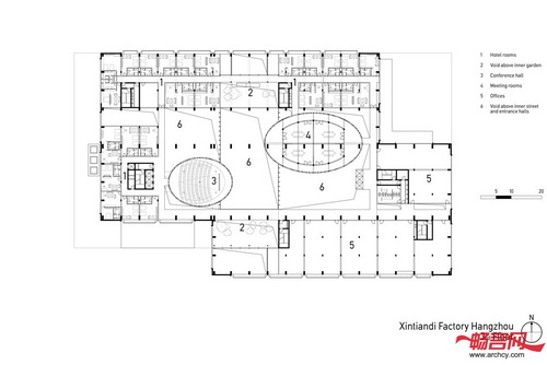
1层平面图

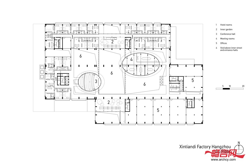
2层平面图

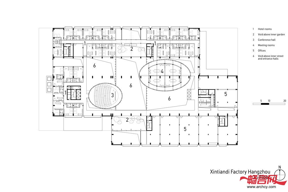
3层平面图

剖面图

立面图

可持续性设计
项目简介:将一个旧铸钢厂改造成一个现代的、集购物中心、酒店及办公楼与一体的多功能综合楼,实现最大限度的保护工业区遗址。
客户:杭州新天地集团
建筑师: Peter Ruge建筑工作室,Peter Ruge, Matthias Matschewski, Hyesook Ahn, Alexander Andrejew, Byoung Gil Jung, Lucas Gray, Tatjana Sinelnikova, Maria Katschalova
建筑位置:浙江杭州
完工时间:2011年
项目委托方:杭州新天地集团
设计组:Pysall Ruge工作室 --- Peter Ruge, Matthias Matschewski, Hyesook Ahn, Olivia Grandi
工程合作者:DBH Stadtplanungs有限责任公司杭州分公司
面积:占地面积8,100平方米,建筑面积17,900平方米
工期:2010 - 2013年
服务范围:项目分析、设计理念、设计规划、准备审批文件、主要细节规划、调节当地工程师、对审批及执行文件进行监督
Peter Ruge建筑工作室联系方式:
联系人:Matthias Matschewski先生
地址:德国、柏林市、Rheinstrasse 5号, D-12159
电话:0049-30-85 07 99 20
邮箱:info@peter-ruge.de
网页:www.peter-ruge.de
|