上海泗泾光明运营管理中心
来源:网友记忆加温i投稿 2019-09-20
规划布局
项目位于上海市松江区鼓浪路与文化路街口,西侧为泗泾公园,沿文化路南下可直通泗泾古镇下塘风貌保护区,是泗泾古镇保护与更新的重要示范项目。本项目不仅仅是运营管理中心,还承载了重要的示范展示功能,是泗泾古镇更新项目对外展示的窗口。
.jpg)
.jpg)
设计师通过对泗泾古镇的整体改造与规划设计,展示了泗泾源远流长的农商文化;保留了泗泾古镇中的史量才、马相伯等名人故居。规划出演绎十锦细锣鼓、皮影戏等非物质文化遗产的地方;同时宣传泗泾面塑、剪纸、阿六汤圆、广利粽子等即将失传的民间匠艺。藉此吸引人们来到泗泾,了解泗泾,让文化技艺被更多的人传承发扬。
.jpg)
建筑及景观一体化设计,通过中式庭院的植入,赋予单一的院落空间更多的情境感和趣味性,使得建筑作为庭院构成元素的一部分,打造具有泗泾特色的中式文化回廊叠院。让人们游走期间,移步异景,感受泗泾古镇的“历史、现代、未来”。
.jpg)
.jpg)
"水廊" 与 "院桥
设计特色
保留现有的建筑轮廓及体型,以传统建筑元素进行立面及环境的更新。从泗泾古镇特有的传统空间八大元素“水+ 街+ 巷+ 廊+ 院+ 桥+ 塔+ 寺”中提取设计元素,以“水+廊+院+桥”作为设计的主要要素。
.jpg)
回廊叠院作为主要的总图构成,将空间划分为动静两区,建筑主体与主庭院景观融合布置在北侧,停车区域布置在南侧,与入口落客区相连,独立的功能分区,实现人车分流,减少相互之间的影响。主入口落客区通过景观山水月亮门隔断望向主庭院直达尽端回廊的景亭,形成“一”字主轴线,强调了中轴纵深感。
建筑主体与主庭院通过风雨廊串联而成,沿廊前行,眺望主庭院中白石子幻化的“水”,绿植凝结成的“岛”,延续了历史的石板桥,随风舞动的松叶,随着步移景异内心渐渐趋于平静,仿佛逃离了城市的嘈杂与喧嚣,进入了泗泾的历史长河。
.jpg)
.jpg)
建筑主体东西两侧还各有一个庭院,西侧是观光电梯的竹林景园,东侧是后勤功能的荷塘石园。
.jpg)
.jpg)
主体建筑入口两侧由挺拔序列的木格栅呈“八”字向内排布,吊顶同样倾斜向内,形成“四水归堂”的入口之势,顶部一片简洁的钢板挑出让整体建筑更加舒展大气,现代的材质与中式传统概念的融合,让建筑更多一分灵动。
.jpg)
.jpg)
步行进入大堂,映入眼帘的是通高的镂空雕刻锈铜板,中间一个圆形镂空洞让后面的展示区若隐若现,更具中式框景的意境。侧方的会客厅背景墙采用了泗泾当地材质拼接,加上平面构成的手法运用,形成最具泗泾特色的展示墙。
.jpg)
.jpg)
一层主要功能是公共展示区及食堂。顺梯而上,来到会议功能为主的二楼,南侧房间推门而出,站在露台上,可以眺望主庭院的雅致美景。三层主要是办公区域。
.jpg)
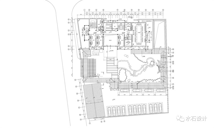
1F平面图
.jpg)
2F平面图
.jpg)
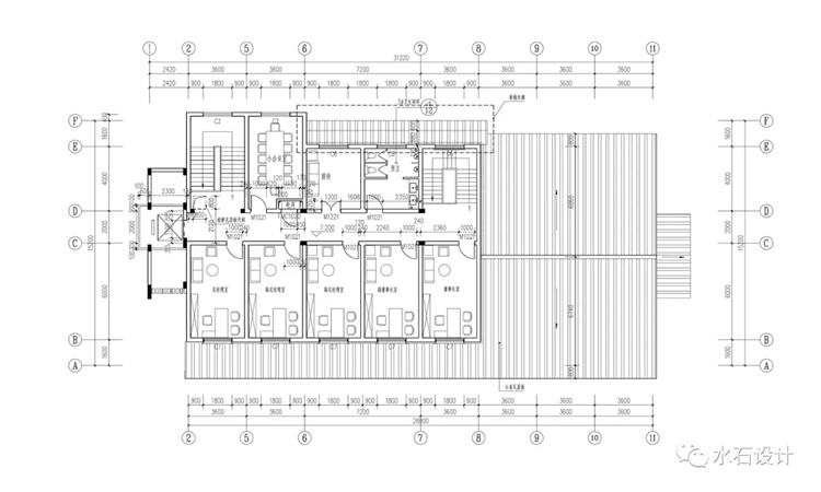
3F平面图
.jpg)
.jpg)
融合 · 创造
.jpg)
.jpg)
.jpg)
.jpg)
.jpg)
立面
建筑立面风格是现代中式。从松江区及泗泾古镇的传统建筑中寻找传统建筑设计元素,结合项目特点及定位,运用传统比例构建现代中式建筑整体形象,用现代的手法表现传统的神韵,以新材料,新技术,新工艺使现代主义和传统主义完美结合。
主体色彩以中国黑与中国白为主基调辅以木色体现中式建筑整体的传统色彩。院落主入口两侧围墙,以抽象的坡屋顶轮廓序列排布形成造型漏窗。
.jpg)
.jpg)
改造前后
庭院回廊柱列均布,美人倚靠连通其间,展示墙面有一段加入素混凝土镂空景墙,透过大小渐变的孔洞亦可一窥景致。中轴上的景亭衬墙是青砖石雕,将传统韵味演绎淋漓尽致。
.jpg)
.jpg)
.jpg)
.jpg)
建筑主体由屋顶分成两段式,一二层为一段,通高木柱间隔分布形成礼序的外廊空间,立面由白墙与竖向线条的木饰花格窗间隔阵列,三层则以木饰面为主满铺形成第二段。
.jpg)
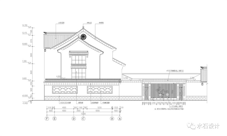
正立面
.jpg)
侧立面
.jpg)
背立面
.jpg)
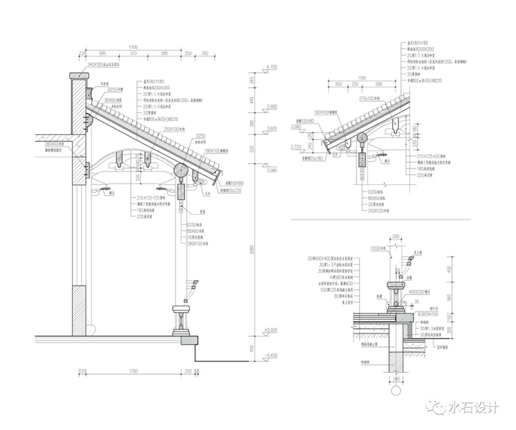
立面细节大样图
项目名称:上海泗泾光明运营管理中心
项目规模:2 200㎡
设计时间:2017年6月-2018年1月
建成时间:2019年7月
建成状态:已建成
建筑材料:小青瓦 花旗松木 芝麻黑花岗岩 黄麻花岗岩
建筑材料:仿古锈板
工作内容:设计一体化
设计单位:水石设计
设计部门:设计七部 水石工程 苏州水石传统建筑研究院
业主单位:光明地产第一事业部
合作公司:科苑景观 康而欣建筑装饰 徽之度照明
照片摄影:胡义杰
发表评论
最新评论
投稿

.jpg)
