南昌华侨城万科世纪水岸社服中心 | 水石设计
来源:匿名网友投稿 2024-02-02
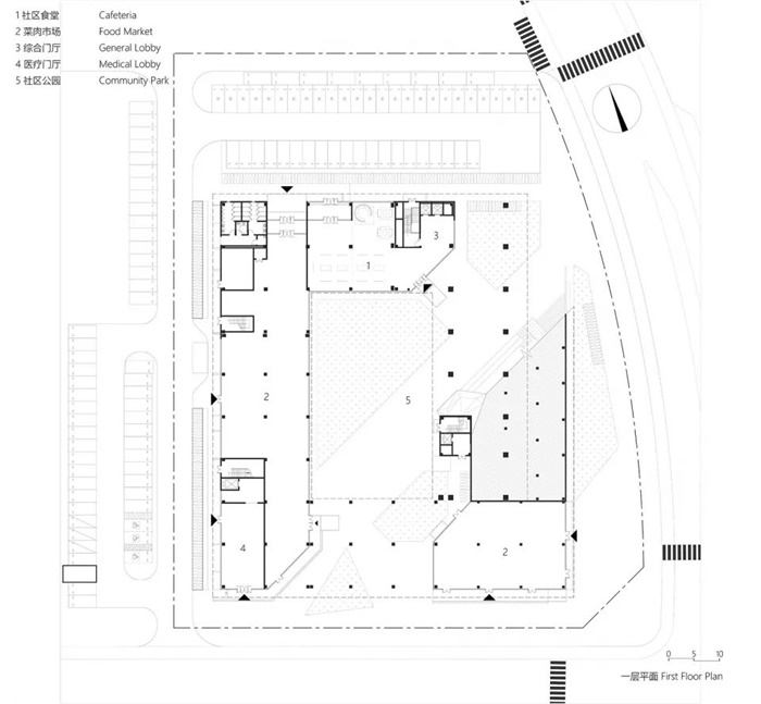
本案位于云海路以北,侨香路以西,是被住区环绕的一个社区配套。不同于传统社区的单一化物业服务,世纪水岸坚持以业主家人的美好体验为第一要务,对各项公共配套进行迭代升级,营造多元生活场景。在社区服务中心的打造上,结合社区商业、生鲜市场、水岸食堂、文化展示活动中心、医疗服务中心、老年人服务中心、政务服务等运营内容,营造一体化全龄段复合业态生活场景。
在这个项目中社区服务中心的角色被重新定义。不再是仅仅满足刚需的传统模式,而是担任购物,社交,美食,运动,公园,养老医疗等多重角色,成为陪伴居民、甚至是激发居民满足感、自豪感的“超级社区”。作为超越居住功能的城市能级的存在,超级社区有别于传统社区更重要的命题是提升城市的功能与品质、让城市生活更方便、更舒
本着“每一个人都应该是社区的共建者、城市的共建者”(摘自《世纪水岸公约》)。探索美好社群模式富有意义的一次特别实践。未来世纪水岸也将持续关注社区里每一个“我”不同时期不同的邻里需求,以期将世纪水岸打造成为自治型人文艺术社区范本。
基地东侧是整个大片区的公共绿色大U轴,我们希望这个作为生活核心的建筑与绿轴融为一体,并成为城市开放绿带的延续。我们将整个建筑的造型地景化,使得建筑本身成为一座绿色生态的运动公园。我们用一个螺旋上升的雕塑感的形体作为建筑的整体造型,在整个屋面上打造了一个盘旋而上的屋顶运动公园。在这里给人们提供了各种活动发生的可能性,我们希望打造一个能够让任何人都可以驻足的空间,它可以是一个举办球赛的地方,也可以是一个坐下来闲聊的地方;可以是让人慢跑锻炼的地方,也可以是放空发呆的地方;可以是孩子们嬉戏打闹的地方,也可以是举办一个户外活动或者表演的地方。

.jpg)
.jpg)
.jpg)
.jpg)
.jpg)
.jpg)
.jpg)
.jpg)
.jpg)
.jpg)
.jpg)
.jpg)
.jpg)
发表评论
最新评论
投稿

.jpg)