槙文彦作品展示
来源:网友投稿 2016-01-25

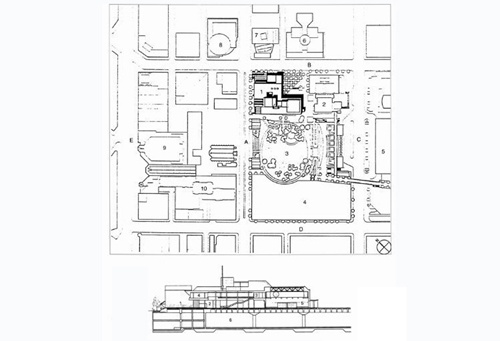
YBG视觉艺术中心
项目名称:YBG视觉艺术中心
建筑师:桢文彦
项目地点:美国旧金山
建成时间:1992年
这所艺术中心座落于三藩市商业区南面一个综合重建区内,是三藩市首处新文化活动点。该中心旨在透过不同的艺术活动,展现三藩市多种族文化及特色,从而打破国界之分,加深国与国之间的密切联系。中心的特性源自一套哲学思想——观众与艺术家扮演互换的角色,期间吸引近200个本地艺术团体在此演出。
建筑物的设计概念源于三藩市的精神文明及港口市镇的起源。这座低层式横向建筑物及其反光装饰,在加州灿烂的阳光下展现出一种轻松愉快的气氛。为求形象真实,建筑物采用钢框铝铺面以减轻其下面会议中心所承受的结构力。以往艺术家曾极力争取艺廊作为他们的“工作室”,亦以艺术中心为家。为向他们表示敬意,设计师将艺术中心设计成一座高尚“艺术工作室”,分别取材自应用於工业的波状铝板、平面铝板、玻璃、麻石及精炼装饰材料,以使此项设计为三藩市带来崭新感觉。






发表评论
最新评论
投稿



