澳大利亚:Potts Point公寓
来源:匿名网友投稿 2012-10-16

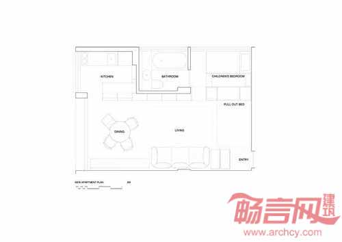
建筑位于澳大利亚悉尼市,公寓面积为38平米,项目对其进行了设计改造。设计思路是以尽量低的成本满足成员增多的家庭需求。业主希望为年幼的女儿提供独立的睡眠区域,增大起居空间,并解决储存空间问题。

设计师将原有的木质结构全部去除,但保留了浴室的核心部分,添加了一个7米长的木柜,用来容纳主人一家几乎所有的用品——书籍、儿童玩具、食物、酒类餐具、花盆、衣物,甚至双人床也包括在内。房屋一侧是厨房和食品室,而主要木架区域是开敞式设计,保证了通透性。另外一侧的衣柜将儿童房和起居室分隔开,衣柜下方安置了主人使用的推拉床。所有物品都摆在自然、方便的位置。

设计造就了丰富和多层次的起居空间,毕竟家不是一个装饰品。项目装饰使用了经济型材料,木柜和厨房采用了低级别预制胶合板,衣柜和床铺使用了添加蜂蜡涂层的南洋杉胶合板。




发表评论
最新评论
投稿
