泰国:Saatchi & Saatchi办公室翻新设计
来源:匿名网友投稿 2012-05-08
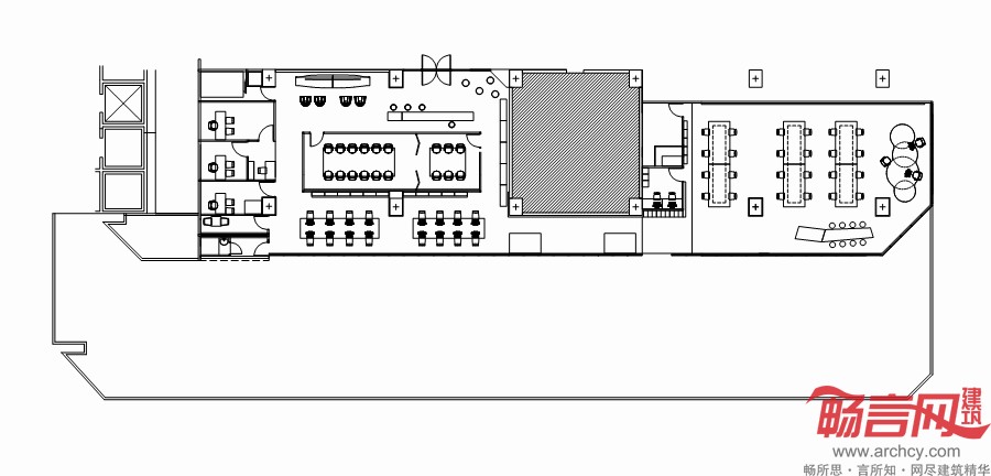
超级机器设计工作室(Supermachine Studio)对泰国Saatchi & Saatchi广告公司的办公区进行了翻新设计,旨在提升该公司办公环境,并帮助启发员工的设计创意和想象力。整个办公区被划分成了2个主要区域:一个创意区和一个管理区。
创意区被设计得比较开放,室内亮度也相对较高,员工在这里可以畅所欲言、互相激励、分享各自的想法,像一个大家庭一样共同协作;而旁边的管理区的室内色调则暗一些,装饰颜色也比较丰富,仿佛是在提醒员工在工作中要保持激情。
在这两个区域中间,有一面有趣的挂满奖品的墙壁和一面挂自行车的墙壁。办公室设备区域的墙面被刷成粉红色,为沉闷的工作程序增添了些许活泼的气氛。
办公室内的很多器具不仅能在功能上满足日常办公需要,而且具有很强的趣味性。设计师通过对这些日常器具在功能上进行扭曲,使它们在既定用途的基础上产生了新的功能,例如由自行车组成的“自行车会议桌”,这个会议桌还可以分离成2个用途各异的小桌子;再例如会客厅前面的装有轮子的大柜台,看上去就像一辆公共汽车,它既可以当作一个移动的吧台使用,也可以用作接待前台。
“我们还模仿火车座位的形式设计了一些小型会议区,这些会议区具备很好的私密性,其外观各也不相同,”设计师说:“另外,我们在创意区的一面墙壁上打造了一片形状怪异的信息墙,从而取代了那些常用的悬挂在墙壁上的方形信息板。”
该项目的总体设计理念就是将人们所熟知的一些物体转化为充满新意且功能丰富的办公物品。由于设计空间比较有限,设计师尽可能地在每个办公物品中都融入了多种功能特点,使之具备多方面的用途。










设计单位:Supermachine Studio
位置:泰国曼谷
建筑面积:400平方米
完成时间:2011年10月
发表评论
最新评论
投稿



