美国:Hillside House别墅
来源:网友安迪投稿 2012-04-12
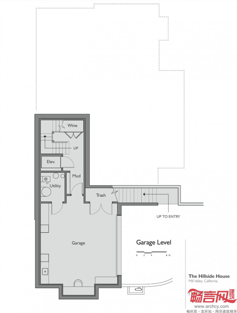
驾车穿过旧金山的金门大桥,向北行驶大约14英里,就来到了加州玛琳郡(Marin County)的磨坊谷(Mill Valley)。那里有一座依山而建的宁静别墅,该别墅是一栋4层建筑,总建筑面积为2116平方英尺。

这栋别墅是玛琳郡第一个获得美国绿色建筑协会(LEED)认证证书的建筑,整个加州北部也鲜有建筑项目获此殊荣。
该项目由加州旧金山的SB建筑设计公司(SB Architects)设计完成,该公司在度假区别墅和多功能建筑设计方面,在国际上都广为人知;建筑施工则由McDonald Construction & Development来承担,该公司在绿色建筑方面享有盛誉。因此,这栋别墅堪称“高端设计与绿色环保的完美结合”。
房子建在一个比较陡峭的山坡上,不论从各楼层的房间还是阳台,放眼望去,迷人的海湾景色和远方的地平线都尽收眼底。
房子每个细小部分的设计都充分考虑到了环保和可持续性,而且房子从整体上也与当地的植被和景色和谐相融。因此可以说,虽然这栋别墅的使用面积远远超过了它的占地面积,但是它带给周围环境的影响是微乎其微的。
















发表评论
最新评论
投稿





