新西兰:科罗曼德半岛海边木屋
来源:匿名网友投稿 2012-04-16
在新西兰东海岸风光迤逦的科罗曼德半岛上,有一座专用于休闲度假的海边木屋(Coromandel Bach)。该木屋由奥克兰建筑设计工作室Crosson Clarke Carnachan Architects设计而成。














关于这座木屋的设计,设计师做了如下阐述:
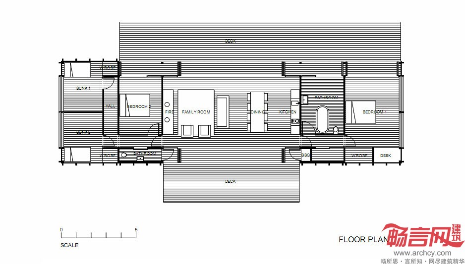
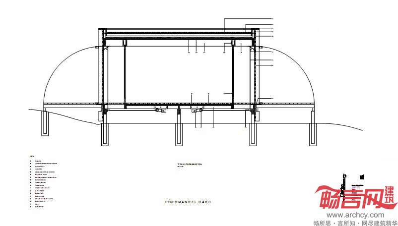
房子是简约的长方体结构,坐落在海边的灌木丛中。远远看去,这座木屋仿佛一个被轻轻地放在海边的集装箱,而实际上它却是一个令人神往的度假小屋。设计这样一座木屋也是为了彰显新西兰的传统木质建筑风格,内外墙面装饰和和木工制品等各方面都代表了新西南独有的原生态木工特色。
这座木屋还能够令人回忆起上世纪末科罗曼德地区“旅行”和“漂流”的时代特点。
房子选用的木材未经过任何特殊加工,保留了其原生态的本质,这就促进了房子与大自然之间的融合。
房子背面的木墙是可以放平在地面上的,由一个简单的机关控制。当主人回来时,木墙就可以放下,当作平台使用;当主人离开时,则将木墙收起,从而保证房子的安全性。
房子的起居室面向大海,是一个开放的空间,给人一种野营的感觉;而卧室则是相对封闭的,而且室内也很凉爽。房子里还有一个大壁炉,因此冬天居住也是不成问题的。
值得一提的是,房子的浴室也是相对开放的,而且浴盆还可以移动,如此设计的目的就是为了营造出一种可以尽情享受新西兰自然风光的环境。
发表评论
最新评论
投稿




