澳大利亚:George Patterson Y&R办公楼室内设计
来源:匿名网友投稿 2012-05-07
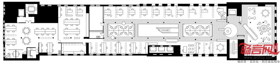
澳大利亚设计单位HASSELL为墨尔本市的George Patterson Y&R公司进行了办公楼室内设计。
“业主要求将这里设计成一个工作室风格的办公区,既要与George Patterson Y&R广告公司充满创意的工作氛围相适应,又要具有现代感和很好的实用性,”设计师说:“业主还要求将这里划分成多个区域,包括休息区、协作区和正式的工位等等。”
办公室所在的大楼是一座老商场,曾经在墨尔本市民心目中有着无比光辉的形象。大楼的一层和二层主要是零售区和商业区,而以上的楼层则是办公区。开阔的内部空间、维多利亚风格的柱子、3楼的玻璃中庭,以及各楼层高度不等(3-6米)的天花板都使得这栋大楼的别具特色。
“在预算资金相对有限的前提下,要对如此大面积的楼层进行现代化装饰,而且这里原本并不是用于办公的区域,这是我们遇到的主要困难。还有一个难点就是天花板的问题,从设计角度看,这里的天花板非常漂亮,但是如果要在这样的天花板上安装取暖和制冷系统以及照明设备,就变得困难重重了。”设计师介绍说。
为了克服这些困难,设计师拆除了办公区内所有并不实用的附加结构,同时融入了很多可以相互独立的现代元素。这样既最大限度地减少了支出,又在一定程度上保留了大楼原有的室内风格。
“应业主要求,我们通过家具和其他设备将新元素融入到室内空间,”设计师说:“比如,我们用书架替代墙壁来分隔室内区域。”这种创造性的设计方案也很实用,由于室内家具都可以移动,因此可以保证很好的采光和通风条件,而且也使得室内空间具备了更高的灵活性。










发表评论
最新评论
投稿
