莫斯科复式公寓 | decoradesign
来源:网友特洛〆伊投稿 2020-12-14
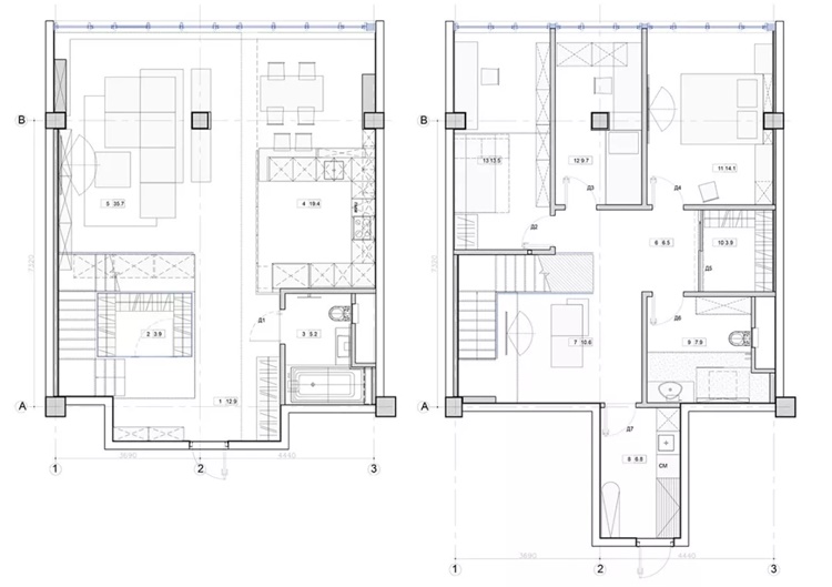
这个顶层公寓位于俄罗斯莫斯科,由 decoradesign设计,面积为 156㎡。公寓共有两层,现代化的设计风格,让整个公寓看上去精致、大气。
一楼是起居室,客厅大面积的窗户为室内带来足够的采光和良好的通风效果,还能欣赏到窗外的城市景观。客厅灰色的沙发、地毯和圆形茶几相得益彰;烤漆玻璃的电视墙配上格栅,更有文艺气息。
开放式的厨房格局,设计非常灵活,移动的木格栅可以随意打开关闭,既美观又实用;厨房岛台不仅是备菜的绝佳场所,也能作为早餐区使用,更是一种变相的隔断。
.jpg)
.jpg)
.jpg)
.jpg)
.jpg)
.jpg)
.jpg)
.jpg)
.jpg)
.jpg)
.jpg)
.jpg)
本站申明:网友阅读本站内容,视为认同本站协议,协议详情请点击查看
标签:俄罗斯室内设计莫斯科复式公寓decoradesign
发表评论
最新评论
相关阅读
投稿
