米兰公寓改造 | ATOMAA
其他来源:ATOMAA投稿 2020-05-29
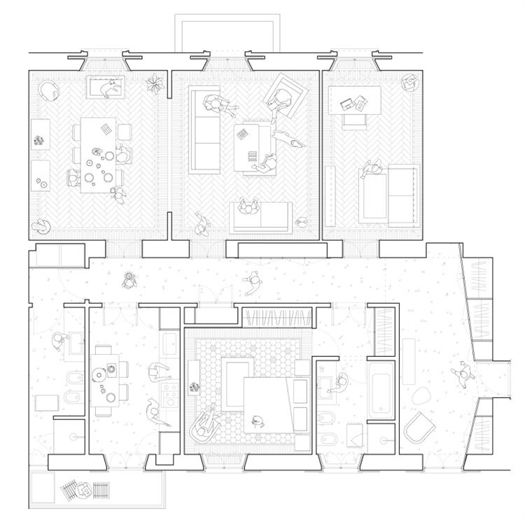
ATOMAA设计公司完成了米兰一座150平方米的公寓装饰改造。项目借鉴了其所在建筑的特点,同时重新诠释了20世纪初的设计氛围。这项干预措施完全根据业主(一位年轻的专业人士)的需求品位进行调整,重新定义了最初的布局:3个卧室、小客厅和工作室,并在起居室和卧室之间形成了分隔。新环境包括一间卧室、休息室和工作室/客房。翻新后,房屋更适应现代生活方式。
.jpg)
.jpg)
.jpg)
.jpg)
.jpg)
.jpg)
.jpg)
.jpg)
.jpg)
.jpg)
本站申明:网友阅读本站内容,视为认同本站协议,协议详情请点击查看
标签:意大利室内设计米兰公寓改造ATOMAA
发表评论
最新评论
投稿


