东京奥运村广场 | 日建设计
来源:网友芝加哥公牛投稿 2022-10-18
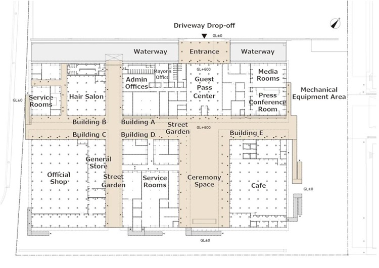
项目是建于东京2020奥运会和残奥会奥运村内的临时设施,由运动员、媒体、VIP和嘉宾等的互动交流空间及仪式空间构成。
建筑所用的木材来自日本各地地方政府,经组装搭建成临时设施,奥运会结束后拆除并分别归还给各地方政府。充分考虑到残障运动员和相关人员的使用,采用了单层建筑的形式,使其具有较高的可达性和普适性,任何人都能方便地使用。
建筑被分成几个独立的单体,通过引入运河自然风的屋檐和作为缘侧(传统日式住宅中的檐廊)空间的“通庭”将整个建筑整合为一体。以传统日本房屋规模构筑的木框架结构,打造出兼具临时建筑的轻盈感和木材的柔和特质的奥运村,成就了展现日本魅力的节日盛典空间。
.jpg)
.jpg)
.jpg)
.jpg)
.jpg)
.jpg)
.jpg)
.jpg)
.jpg)
.jpg)


发表评论
最新评论
投稿

.jpg)
.jpg)