日本京都市新政府大楼升级改造 | 日建设计
来源:网友Windy71投稿 2023-03-10
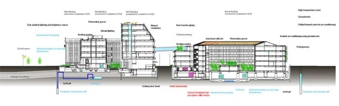
京都市政府大楼主楼自昭和初期建成(I期:1927年,II期:1931年)以来,一直承载着京都市各项行政管理工作的重任。为使这栋现今仍在使用的宝贵的近代建筑今后能够作为行政和防灾基地得到持续利用,京都市启动了包括政府大楼主楼的保存和利用在内的市政府大楼升级改造项目。本项目力求解决建筑在抗震性能和无障碍设计等方面存在的问题,打造一个面向公众开放、可堪百年之用的环保型政府大楼。施工正在有条不紊地进行中,预计于2025年整体竣工。
我们将京都1200年来持续融合“传统与创新”的城市特色,融入到建筑的环保设计中。政府大楼主楼最初就采用了开放的窗户、高高的天花板和进深较小的平面布局等设计,以充分地引入自然光线和风。本次翻修在保留这些可直接利用自然能源的设计基础上,加强了建筑的隔热性和气密性,采用传统的节能方法以尽可能地减少对设备技术的依赖。

.jpg)
.jpg)
.jpg)
.jpg)
.jpg)
.jpg)
.jpg)
.jpg)
.jpg)
发表评论
最新评论
投稿

.jpg)
.jpg)