意大利:Tortona 37办公综合体
来源:网友Carenage投稿 2013-09-27
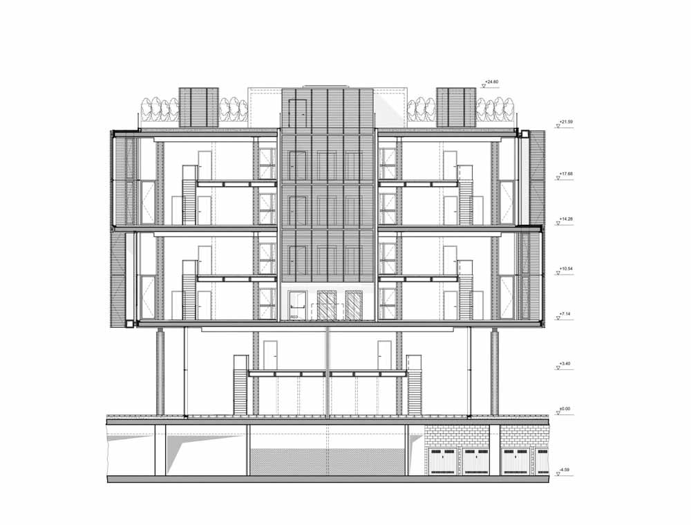
Tortona 37位于意大利米兰,是一个混合功能建筑综合体,包括围绕中央花园的五座大楼。每座矩形大楼均为6层,拥有南北两侧采光。空间层高7米,设置了内部夹层,实现了使用的灵活多边性。综合体内部容纳了展示厅、实验室、专业工作室、商店、办公空间,各自采用了定制设计:高度灵活的空间随时间推移可以一直保持可持续性。整个综合体立面的玻璃窗外悬挂了白色的栅格,达到建筑顶部时,形成了宽敞的露台,如同城市广场,员工来到这里,可以欣赏广阔的景观。项目的每个设计旨在实现最高的能源效率,巧妙协调建筑设计和工程之间的关系,包括配合地热线路使用的中央空调系统和室内的供暖壁板。
发表评论
最新评论
投稿