乌拉圭:“神秘山麓”旅馆
来源:网友记忆加温i投稿 2013-08-08
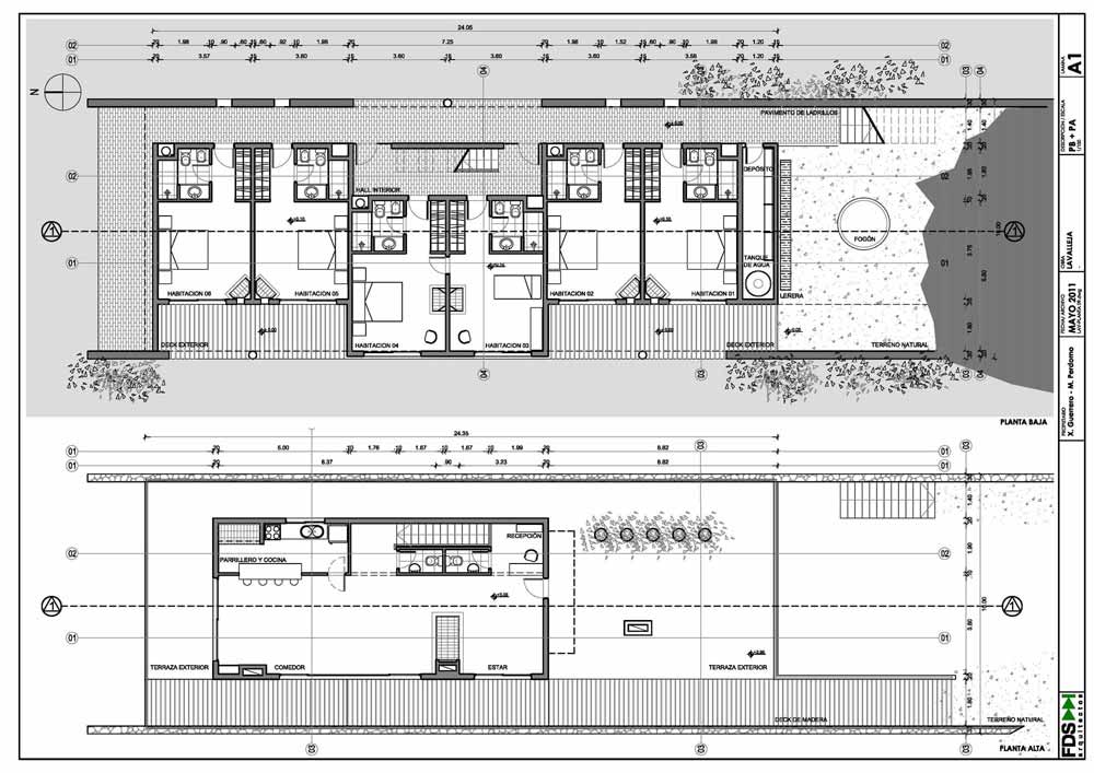
FDS建筑事务所设计了位于乌拉圭Lavalleja一座山丘旅馆,旅馆规模不大,仅有四五间房间。该地区是灵性旅游体验的胜地,处处充满活力。山峦拥有独特的能量,人迹罕至,覆盖着原生植被。场地环境中可以找哦到最初定居者的住所和时间难以考证的考古遗迹。依照旅馆主人的要求,必须在旅馆中为他的家人预留居住空间,但应该足够灵活,可以变成一间客房。此外,旅馆必须有宽敞的接待区,以适应每天寻求灵性旅游的游客团队,并保证不影响私密性和客人活动。






本站申明:网友阅读本站内容,视为认同本站协议,协议详情请点击查看
标签:建筑旅馆休闲乌拉圭
发表评论
最新评论
投稿
