奥地利罗仙姆酒店扩建 | 斯蒂文·霍尔事务所
其他来源:斯蒂文·霍尔事务所投稿 2021-06-29
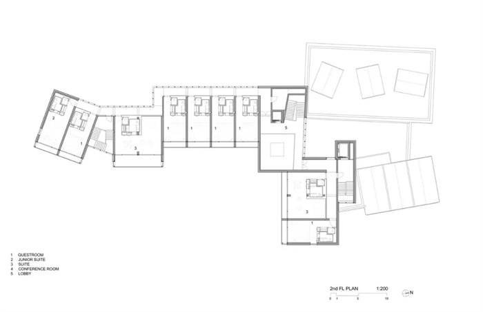
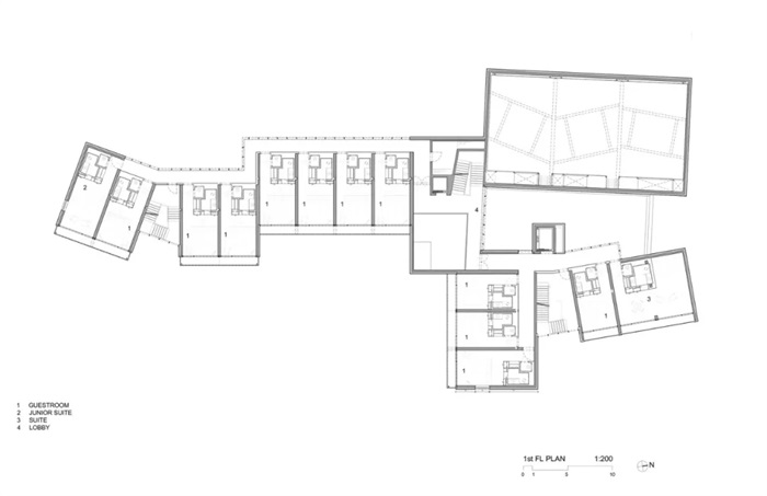
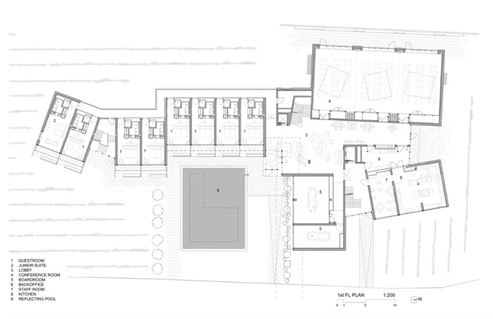
在维也纳以西 60 分钟车程的格朗罗伊斯,在一个微微向南倾斜的葡萄园坡地,斯蒂文霍尔事务所为罗仙姆酒店完成 30 间客房的扩建工程。与当地建筑师 Sam-Ott- Reinisch 的再次合作,新建筑延续了 2005 年原罗仙姆酒店和葡萄酒中心的设计概念。
罗仙姆酒店和葡萄酒中心旨在宣传此处重要的酒窖系统所蕴含的丰富地方文化意义。小镇的城市地表下遗留了历史性的地下网络系统,其中包含已有 900 年历史的石头酒窖。罗仙姆园区里的前两栋建筑试图创建与地窖几何结构相似的关系,葡萄酒中心伫立于葡萄园中,而酒店的设计则呼应了上面的拱顶形状。这三种元素代表了建筑的三个基本类型: 地底下、里面与地面之上。
.jpg)
.jpg)
.jpg)
.jpg)
.jpg)
.jpg)
.jpg)
.jpg)
.jpg)
.jpg)
.jpg)
.jpg)
.jpg)
.jpg)
发表评论
最新评论
投稿

