美国:亚马逊公司总部建筑规划
来源:匿名网友投稿 2012-09-12

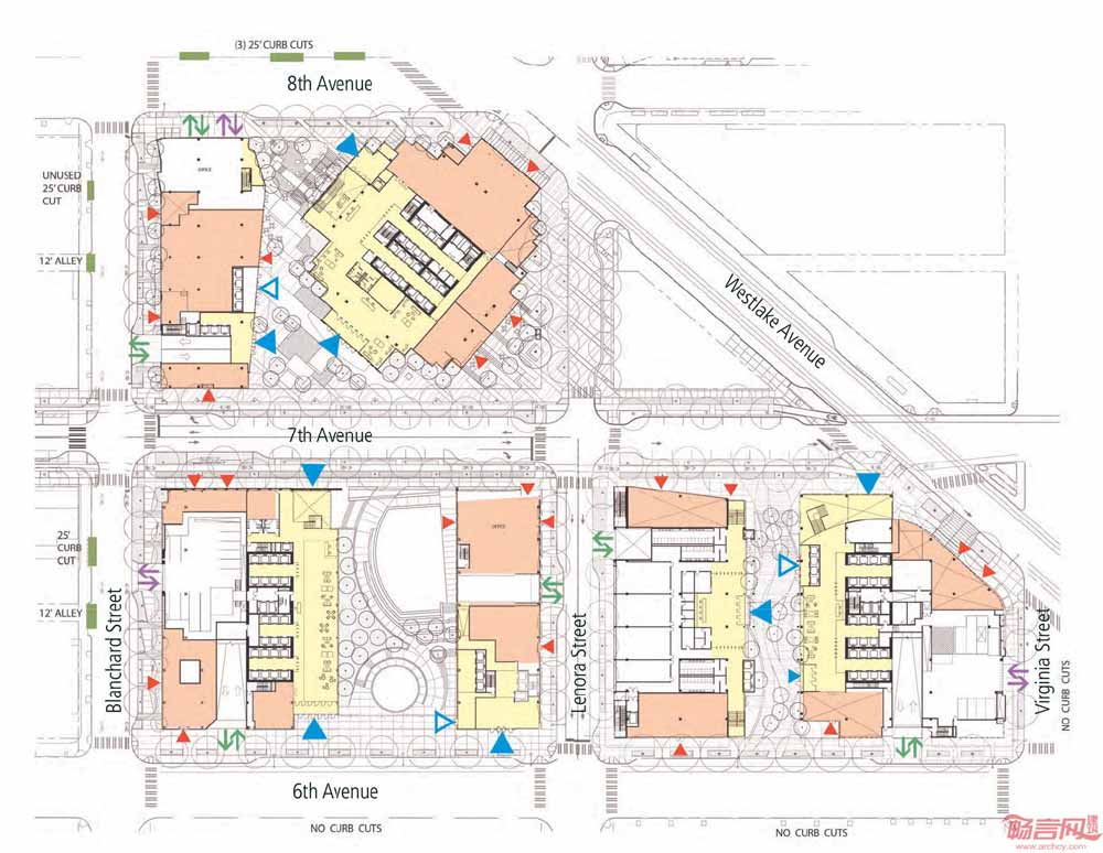
NBBJ建筑事务所为亚马逊公司总部进行了建筑设计,总部位于美国西雅图市中心,设计方案将以前散布的建筑整合成3个版块——高层塔楼、若干开敞空间以及景观广场。项目面积约为30.7万平米,详尽的设计方案已经呈交给西雅图设计审核委员会(DRB),其中明确划分了各建筑的分区,介绍了建筑融入城市肌理的方式,并包含Denny’s Triangle地区的综合开发分析。

目前,西雅图设计审核委员会正在审查NBBJ建筑事务所提交方案中的公共开敞空间的平衡性。据华盛顿大学建筑系副教授、设计审核委员会设计专业代表Gundula Proksch透露,建筑系相关人员担心方案中的私有空间比重过大,她个人怀疑设计能否实现一块真正意义上的公共空间。

设计方案需要遵循与西雅图现有开发标准不同的要求,同时亚马逊公司还被敦促务必要营造公众休闲设施和公共空间。设计方案中包含了多种开敞空间、景观元素及重要的绿化区,同时赋予各区域自然采光,并向公众开放。

项目各版块还划分了用于未来零售空间的区域,使得行人能从街道路面上进入新建筑空间。大楼的拱肩玻璃窗让自然光进入地下层;地下停车库将减少街道上的停车数;公司还为员工添加了自行车库和更衣室,意在倡导更具可持续性的通勤方式。

户外公共空间的规划方式尚未披露,不过方案展现出了具有视觉冲击力的户外环境,其中包含了多种植物、花坛、道路铺设图案,而座位区域使用了混凝土、木材、耐候钢等多种材料。
发表评论
最新评论
投稿

