美国:纽约SPURA场地规划
来源:网友荒漠星空投稿 2012-09-06

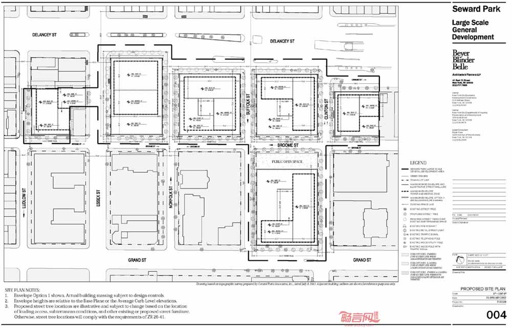
纽约下曼哈顿及Seward公园城市重建区的重新规划场地名称为SPURA,在五十年来社区领导人、活动家和设计师不断争论规划内容后,城市规划委员会最终对一项规划方案按绿灯放行。其后,将进行名为“ULURP”的土地使用审核、城市委员会投票以及市长布隆伯格的最终批准流程,场地可能由一个地面楼层停车场地转变成一个城市综合体空间,零售商店、办公场所、社区设施、新建埃塞克斯街大市场、宾馆、公园以及900套公寓将涵盖165万平方英尺的面积。

SPURA规划方案内容包含了一系列妥协措施——社区委员会要求900套公寓中的一半必须属于永久经济型。此外,区长要求方案必须容纳一所远离仓储式商店的学校。

最近,RAAD工作室的James Ramsey及Dan Barasch提供了一项激动人心的方案,希望将地下地兰西街的电车终点站该照成一个一个充满植物、光线和娱乐的地下公园,终点站临近SPURA规划场地,目前两者之间如何互动尚不得而知。同时,两位设计师正在依靠创意和建造模型筹措项目资金。



发表评论
最新评论
投稿
