手机号:
验证码:
手机号码:
滑块验证:
短信验证:
新 密 码:
再次确认:
超万名行业内专业人士实名投票
秉持客观原则的非商业化评选
首页 >案例>案例赏析>室内>正文
来源:网友记忆加温i投稿 转载自:上海禾易建筑设计有限公司 2015-12-16
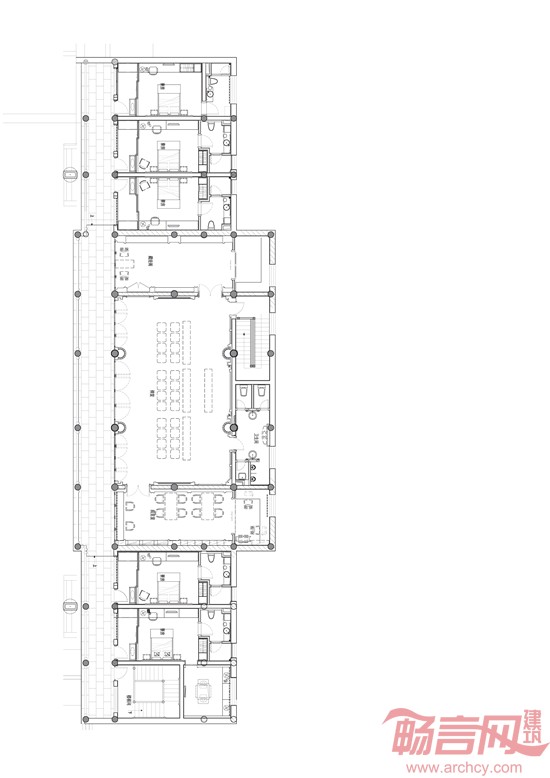
知也寺一层总平面图
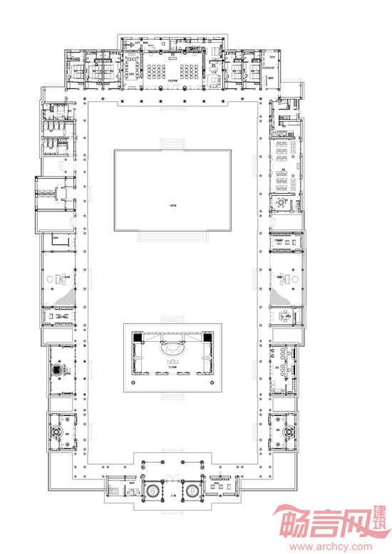
知也寺二层总平面图
发表评论
最新评论
台州某片区更新项目设计招标
海口某学院(省综合训练基地)二…
马鞍山某智能装备及特种机器人…
荆州高层住宅项目外墙楼体亮化…
南昌住宅小区项目标识标牌寻找…
安徽省界首市工业厂房项目寻找…
李荣昊:从成都太古里到东风韵…
邹迎晞:如何在农文旅项目中实…
卓汉:作品即主张,传统材料呈…
NBBJ 艾瑞克·菲利普斯:解密阿…
潘磊:烟台蓬莱机场T2设计…
奥雷·舍人:大胆的叙事想象引…
上海 海创中心一期 / FTA Grou…
希腊圣托里尼Neema Maison Fin…
荷兰Staal-Kade大楼 / Office…
美国波特兰Ellen Browning大楼…
荷兰海牙B73政府办公楼改造 / …
阿根廷布宜诺斯艾利斯通透理性…