大连某海景房
来源:网友hurstone投稿 转载自:刘耀成设计顾问(香港)有限公司 2012-10-11
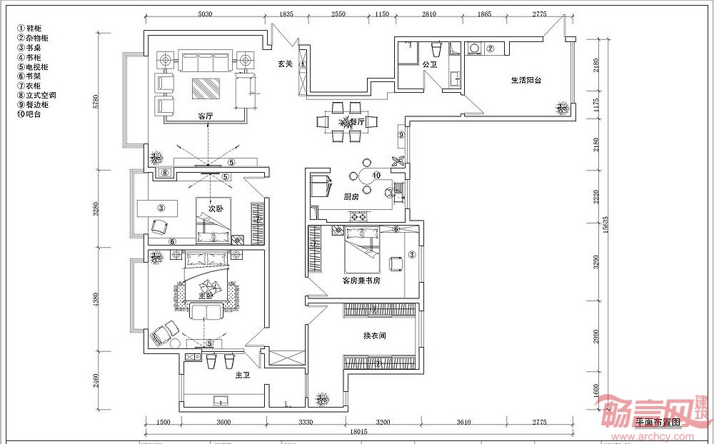
项目地点:大连
关键词:蓝色、浪漫
建筑面积:200平方米
装修投入:60W
主要材料:硬包、瓷砖、大理石
空间格局:四房两厅

大连某海景房
一个心智成熟的人,必然拥有丰富的内心世界,必然不会人云亦云,必然有其鲜明的个性和特点。恰如这套作品,并非涂有华丽的外表,而是可以经得起品鉴和玩味,经得住岁月流逝的考验。运用简炼大气的新古典主义设计手法,将经典的设计语言和华丽的材质以及考究的施工工艺有机的结合到一起,以打造一种华丽兼备优雅的空间气质。奢华这个词与豪宅似乎有着天然的联系,但当奢华与金碧辉煌划上等号,豪宅也就失去了他所蕴涵的主人对真正高端生活方式的追求,而仅仅流于形式。本案所采用的后奢华主义是奢华风格的延续和发展,它沿用奢华风格对材料质感和光泽度 的追求,同时运用现代的工艺材料与表现手法赋予可它时尚的面孔,营造低调奢华的氛围,恰像一位成功人士逐渐走向成熟的过程,从简单直白,到低调内敛。
平面布置图











发表评论
最新评论
投稿
