成都温哥华花园销售中心
来源:网友jclarke87投稿 转载自:戴勇室内设计师事务所 2012-11-05
项目名称:成都温哥华花园四期销售中心
开发客户:四川温资房地产开发投资有限公司
室内设计:戴勇室内设计师事务所
摄 影 师:江国增
建筑面积:800平方米
使用物料:罗马洞石、伊朗玉云石,仿古砖、木饰面、软包、木地板
项目地点:成都
设计时间:2011年
完工时间:2012年7月
软装工程\艺术品:戴勇室内设计师事务所&深圳市卡萨艺术品有限公司

成都温哥华花园销售中心
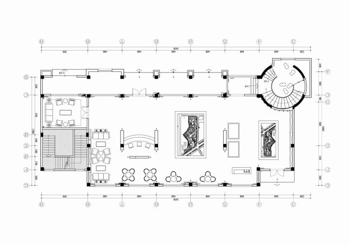
美式风格的温哥华花园四期销售中心,摈弃了过多繁琐的装饰,以简洁的线条和自由的搭配,给客人带来轻松休闲的洽谈气氛。
大量的木饰面、仿古砖和石材的装饰是美式风格一贯的特点,暖色的橡木饰面带给人亲切自然的氛围。展厅两面对称的立面设计极富特色,中间高耸到顶的软包上,黑白挂画的构成组合,体现出独到的空间界面处理手法。沙盘上高低错落的金色吊灯把空间点亮,洽谈区舒适的的美式沙发,黑色铁艺吊灯,带着一点文化的怀旧气息。
自由,轻松,休闲,舒适,看似自由的搭配却蕴含着严谨的审美规律和现代的构成手法,使得整个销售中心的室内设计既富有美式文化的历史感,又兼具时代气息。






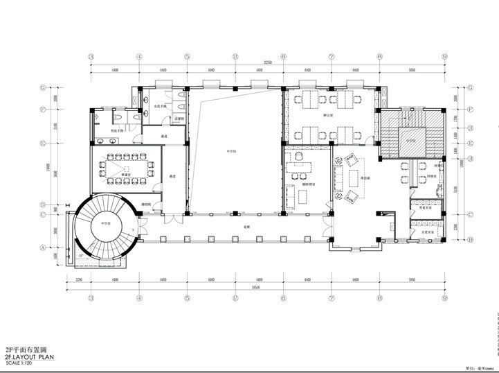
二层平面图
发表评论
最新评论
投稿

