三亚海棠湾阳光壹酒店 | 欧华尔顾问有限公司
其他来源:欧华尔顾问有限公司投稿 2021-06-28
.jpg)
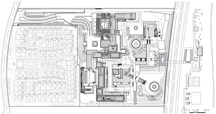
三亚海棠湾阳光壹酒店坐落于风光旖旎的海棠湾,直面蜈支洲岛与广袤的南海。项目总用地面积约10 h㎡,场地呈长方形,面海一侧宽约250 m,由东区壹酒店及西区的62栋低层独栋客房组成。
.jpg)
酒店品牌为美国SH集团旗下的ONE(壹),该品牌作为第一个以自然为灵感和带有使命驱动的生活方式的酒店品牌,诠释了亲和自然的设计、顶级舒适的可持续性建筑和无与伦比的服务。从大自然撷取灵感,创造独一无二的生态、环保的旅居体验,是壹酒店简约却触人心弦的酒店设计理念。建筑的灵感源于海南岛的自然地理、气候和人文环境景观,并结合了壹酒店绿色环保、可持续发展的经营理念,营造出轻松、舒适、自然、生态、开放、简约、现代且富于质感的体验式度假场所。
.jpg)
.jpg)
.jpg)
.jpg)
项目用地并未像其他滨海度假酒店一样直接面临沙滩,而是被一条市政滨海道路阻隔。为了更充分地利用海景景观,设计将酒店入口大堂设置于三层,令入口景观更为开敞。客房分为南北两翼,全部采用单面走道,使大部分客房都享有海景。酒店中部为大堂、全日餐厅、中餐厅、特色餐厅等公共区域,SPA中心位于北翼首层,宴会厅及会议区位于南翼下方,通过下沉庭院与景观直接相接,各类后勤用房、车库及设备用房设置在地下或半地下空间中。酒店总建筑面积为6 万 ㎡,地上10层(局部11层),地下1 层,建筑高度为33.35 m(从大堂层算起)。
建筑风格同酒店定位相匹配,突出生态环保、回归自然的朴素理念,通过体型的转折变化,打造了形态错落、步移景异的建筑群落。外立面受到海南当地传统建筑的启发,并融合被动式环境设计策略,通过一系列遮阳和融合建构的景观绿化设计,使得空间层次丰富,光影变化细腻,富于体验感。墙体将暖色木料、耐候金属与源自本地火山石材等天然物料相结合,营造出质朴、自然的多样氛围。项目采用本地植被,营造出不同质感的墙体层次,以及错落有致的屋顶平台和大小不一的半开放式庭园。设计着重第五立面的打造:落客平台、裙房及客房屋顶均进行了详细设计,营造出不同质感的平面层次、错落有致的屋顶平台以及各式各样的半开放式庭园。
.jpg)
.jpg)
.jpg)
.jpg)
酒店拥有294 间舒适、雅致的客房,为了打造不同的宾客体验,标准客房设有3种主题,以卫生间与卧房区的不同组合关系,营造出别有趣味的客房氛围。客房楼首层还设有独具特色的泳池池畔客房,客房楼顶部设有3套空中海景复式套房,每个套房都有独立、私密的屋顶花园及泳池。酒店内设有大堂吧、全日餐厅、中餐厅、屋顶酒吧、宴会厅及多个会议室,还设有SPA中心、儿童与康体中心。室外设置了多个特色泳池及休闲空间,场地中部还预留了下穿市政道路直达海滩的地下通道。酒店客房柱网采用10 m x 5 m,层高可达到3.8 m,其标准均高于普通的五星级酒店,为营造宜人的客房空间,提供良好的居住条件。为了保证屋顶花园的整体效果,顶层客房上部设置了设备夹层,使大量的设备管道在此处进行转换,保证了外部的建成效果。在技术策略方面,设计充分结合了壹酒店的环保概念,强调建筑的自然通风与采光,多处设计底层架空花园、空中庭院、屋顶花园,同时外立面遮阳隔热、场地雨水收集与利用、中水处理、太阳能热水、外立面自动滴灌系统、多重生态景观多样性、高效节能机电设备等一系列绿色智能技术也在建筑中大量使用。同时,室内外随处可见的艺术品展现了艺术与自然万物相结合的理念,木材、绿植及其他环保材料的使用让优良的材质再一次绽放了生命力,留存在每位宾客的记忆中。
该项目于2014年开始设计,中间经历了更换酒店管理公司和方案设计团队的波折,在业主及参建各方持续不断的努力下,经过近5年的建设,酒店部分于2020年初正式开门迎客,已经成为“国家海岸”——海棠湾又一个标杆性的设计型精品酒店。
项目概况
业 主 | 海南阳光鑫海发展有限公司
建筑设计 | 北京市建筑设计研究院有限公司(BIAD)第一建筑设计院/酒店建筑研究中心
项目总监 | 杜松
项目经理 | 刘志鹏
设计总负责人 | 梁燕妮、刘志鹏
建筑专业 | 任蕾、赵晨、宋廷伟、谭川、范迪龙
结构专业 | 徐福江、张沫洵、卢帅、赵博尧、李硕
设备专业 | 段钧、周小虹、张志强、魏广艳、李昕
电气专业 | 刘倩、张争、郝晨思、孙晟浩
建筑方案设计 | 欧华尔顾问有限公司(OVAL)
室内、标识及软装设计 | FARMWORK PTE. LTD /广东省集美设计工程有限公司
景观设计 | 库珀希尔新加坡私人有限公司/ GVL怡境国际集团
灯光设计 | LIGHTING PLANNERS ASSOCIATES (S) PTE LTD(LPA)
机电顾问 | 科进柏诚工程技术(北京)有限公司
厨洗顾问 | 奇凯博厨房设计顾问(上海)有限公司(CKP)
声学顾问 | 沈麦伟(上海)商务咨询有限公司
消防顾问 | 中怡保险经纪有限责任公司(AON)
SPA顾问 | SPA VENTURE GROUP LIMITED(GOCO)
儿童俱乐部顾问 | 柏睿思规划设计咨询(北京)有限公司
施工总承包 | 中国建筑第二工程局有限公司
发表评论
最新评论
投稿


.jpg)