苏州浒墅关文体中心 | 中衡设计
来源:网友咖啡牛奶投稿 2021-06-28
本案所在地浒墅关镇,自古为江南重镇,位于苏州城西北、南阳山东北麓。民国《吴县志》对浒墅关的记载有“相率栽桑、饲蚕,今田野间亦有十亩闲闲之象”。宣统元年,江苏谘议局决议在浒墅关开办江苏省立女子蚕业学堂,后又改制为江苏省丝绸工业学校,是时,种桑、养蚕、织丝在全国辉煌一时。
而在漫长的历史长河中,对近代蚕桑制丝业举足轻重的丝绸工业学校最终并入苏州大学,丝绸生产在浒墅关逐趋没落。在此背景下,我们决定为浒墅关设计一座映射其辉煌丝绸时代的文体中心,以文脉观进行创作,通过建筑空间、材料与技术的转译重构,使建筑与城市风土、人文情感融合共生,织补浒墅关这段失落的历史。
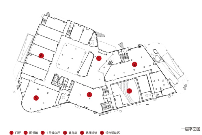
建筑师为这座文体中心设计了一层极具柔性、形似丝绸的外表皮,将两个相对独立的建筑单体包裹联结,并在中间聚合出公共开放空间。轻薄的金属穿孔板作为这层外表皮的主要材料,记叙着如今浒墅关经济开发区高歌猛进的时代性。柔韧的造型、细密而又轻薄的质感不难让人联想到闻名遐迩的浒墅关丝绸。现代性与在地性于此间寻求平衡,在城市文脉的彼此关照中成为可阅读、可识别的事物。
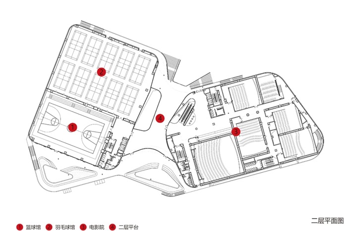
在古希腊的城市规划中,公共的开放空间总是最先被建构的,“它们应该被平整、加以铺装,再以公共建筑、神庙、美食设备和商铺来填充”。同样,由柔软外表皮聚合出的二层公共空间不仅为社区赋予了美学吸引力,同时给予人们毫无阻碍的日常交往和社区活动场所。这里远非被技术基础占据或服务于商业活动的漂亮载体,而是一个真正关切市民情绪、邀请他们来此参与、在开放空间中共情、培育社区文化的“雅典古市集”。
而在室内场馆体验中的藏匿美学也无不体现设计师们的文化认知与趣味。屋顶结构受力件与建筑赋形融合考虑,将美学趣味和建构观念的矛盾藏匿在了作品的建成效果中。管桁架下方形成了采光口,统筹整体结构强化与采光节能性能优化的设计,并通过独特的视角引导使用者欣赏天空景色。
.jpg)
.jpg)
.jpg)
.jpg)
.jpg)
.jpg)
.jpg)
.jpg)
.jpg)
.jpg)
.jpg)
发表评论
最新评论
投稿

.jpg)