南方科技大学图书馆
来源:匿名网友投稿 转载自:Urbanus都市实践 2014-06-23

鸟瞰效果图

规划方案

立面图

中心轴测分解图

三层平面图

二层平面图

一层平面图

地理区位图

GRC

铝板整体成型安装过程示意图

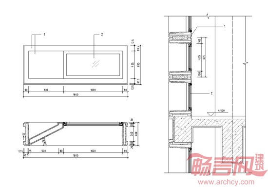
剖面图
本站申明:网友阅读本站内容,视为认同本站协议,协议详情请点击查看
标签:建筑设计南方科技大学图书馆Urbanus都市实践
发表评论
最新评论
投稿