Wutopia Lab | 大理十九山
其他来源:Wutopia Lab投稿 2019-11-19
.jpg)
Wutopia Lab接受好友委托
历经约三年
在大理海东方完成了一个
以水墨为基调的最佳民宿
.jpg)
.jpg)
我的甲方是在德国读中学大学的80后上海人
我很好奇他为何要在大理做个民宿
他说“大理我觉得很自由。”
建筑师老张的大理是阳光下懒洋洋的
一个自我放逐的大理
而更多人的大理是夜色酒吧里的酒精
恍惚的歌声和乱穿的荷尔蒙
但我认为放纵算不上自由
当小孙的猛禽迎着炙热的阳光鞭挞下
粗暴地冲上海东方的山坡
没有牵绊的蓝色洱海广阔地横陈在眼前
自由
这是进入我脑海的第一个词
.jpg)
.jpg)
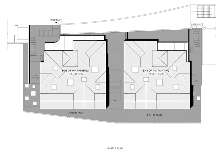
上:总平面图
-做减法是自由的第一步-
我们站在拆除一空的别墅里
很容易达成共识
那就是每个房间都不能局促
每个房间都必须面朝洱海
面对闪耀光辉的苍山洱海
任何装饰都是做作
那些地域性创作或者堆砌民族物件都是多余的
做减法吧
这是没有牵绊的自由生活的第一步
.jpg)
窗一定要开到最大
阻碍视线的铝竖梃要减光
增加造价也在所不惜
因为要无阻碍地把风景
变成室内的主角才是第一位的
房间要空旷
功能和装饰要减少到刚刚好
很大的床
面向大海的浴缸以及大沙发
还有集合了用餐喝酒和办公的综合性中岛
就正好足够了
客房门厅、衣帽间和卫生间
被小心隐藏在一道连续的屏风墙后面
屏风上抽象的水墨山水明显就是呼应着苍山
我希望客人就这样坐在或者躺在山水间
身无多余之心和物
这才是自由
.jpg)
-减色也是减法-
我决定减色
但我不想落到极简主义等于纯白色的窠臼
毕竟
建筑行业将白色奉为圭臬源于一个错误…
(来自:帕拉迪奥)
而且白色具有一种攻击性
“白色排斥一切比自己卑微的颜色
几乎所有的东西都臣服于它”
它会让风景和人都拘束
这很不自由
但如果我全部用黑色
那压抑的黑色让欣赏风景的心情变成嫉妒和不满
我呆呆地站在现场
但“黑色是一种颜色”啊
我如果把黑和白组合起来
仿佛水墨画一般设色
那么这个空间就不会极端
反而贡献出和绚烂的蓝山碧水对偶的下句
减色不是减成一
而是减成可以相辅相成的二
.jpg)
.jpg)
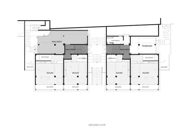
首层平面图
.jpg)
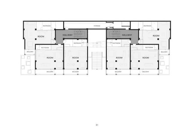
负一层平面图
.jpg)
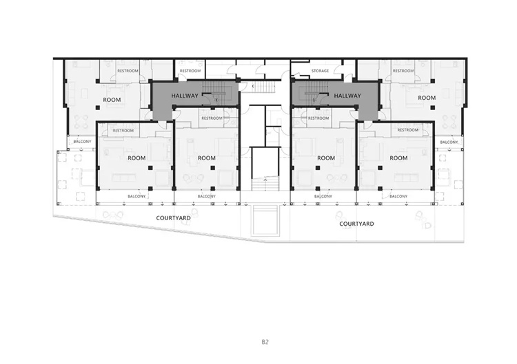
负二层平面图
-黑色是复杂的-
我用不同质感的黑色
其中涂料、金属油漆、地板、玄武岩
把大门、前台、厨房、茶室、公共空间
以及庭院和客房的地面
连续成一幅层层晕染的黑色画面
复杂的黑色消弱了客房的白色墙面
和天花的神圣性
以及不能改动的外墙颜色的世俗性
把不可调和的它们综合在一个叙事结构中
消除彼此的藩篱和对立,自由啊
你看到了
.jpg)
.jpg)
.jpg)
.jpg)
首层轴测图
.jpg)
负一层轴测图
.jpg)
负二层轴测图
-到达看得见风景的房间是一次仪式
在斜坡上
我建议你略停留一下
然后推开沉默的黑色大门
黑色地面上闪耀着一地碎片的阳光
洱海啊
宁静地躺在那里
你进入有着天光的黑色门厅
阳光把黑色洗刷得有些懒洋洋的
然后你进入楼梯间
太黑了
以至于你要重新适应
我觉得你一定是摸索地找到你的房间门
打开后是一间被屏风挡住的黑色门厅
光线已经透了进来
空气中似乎有蝴蝶翅膀的煽动声
你会迫不及待地拉开房门
是的
洱海就这么迫不及待跳了进来
你一定会陷落在她的光辉里
这个房间在这时是五颜六色
绚烂的
“色彩之于形象有如伴奏之于歌词
不但如此
有时色彩竟是歌词而形象只是伴奏”
自然的色彩才是设计的主调
你或许会叹口气
这一路走来都是值得的
到达这看得见风景的房间就是一次人生洗礼的仪式
.jpg)
.jpg)
-我保留了一个不极简的痕迹-
十九山原来的别墅施工误差很大
逼得我们用石膏板墙重新把天花和墙壁找平
可是如果把阁楼凌乱的梁吊平的话
阁楼的使用会很不舒服
会让人觉得局促
我想了想
自由是不被要挟
我就不吊顶了
我把这乱七八糟的梁用白色一刷了之
你在客厅回头看上去
这梁如同树枝藏在后面的天花下
不错
放下执念也是自由
.jpg)
-立面代表一种克制-
十九山是所谓的西班牙地中海式别墅
(我建筑历史不好
我觉得这是加州房产商的流毒)
我没有权限把它改成其他什么的
我只有做减法
把它减成西方建筑学的最基本的类型---
拱廊来延续周边建筑的“文脉”
每个拱券应对一个柱跨而形成变化
和周边的建筑相比显得克制的活泼
立面隐藏了室内澎拜的冲动
平静微笑地矗立在山坡上
背后则是自由
.jpg)
.jpg)
.jpg)
立面图
.jpg)
剖面图
-偶然的设计-
我原本想拆掉房子侧边的雨棚
把阳光引入深处的客房
孙总的意见是雨棚就是灰空间
让房间里的人出来更接近洱海
于是我把浴缸推到室外
两侧各加了一组拱券
两个奢侈的户外灰空间诞生了
极简主义露出的一丝罅隙就是自由的空间
.jpg)
-突发灵感的红色-
在封闭顶楼外墙的时候
我在未完工的空洞上突然灵机一动
决定留一个圆形高窗
红色的
朋友调侃这是欲望之眼
但那时我想到的是首老歌《红日》
我们70后总是鼓励自己不要放弃
我们不会过佛系的生活
也不会丧
这红日便是我们的态度
.jpg)
-蝴蝶是仅有的装饰-
70后的我对大理的第一印象是蝴蝶
可惜现在在大理
蝴蝶几乎是被遗忘的谈资
我决定用蝴蝶作为仅有的装饰
它会出现在客房门厅的天花
和客房里狭长的壁龛
光线轻轻地打在蝴蝶轻薄的翅膀上
空气中仿佛有细微的脆响
是的
它就是一种遥远的回忆
提醒住户
这是大理
-项目信息-
项目名称:大理十九山
设计公司:Wutopia Lab
主持建筑师:俞挺 闵而尼
项目建筑师:濮圣睿 穆芝霖
设计团队:孙悟天 俞晓明 孙敏 张玮 方崇光(实习)
项目管理咨询公司:上海至烨建筑设计咨询有限公司
摄影:CreatAR Images
地点:云南大理
面积:1502 ㎡
材料:火山岩、玻璃、钢板、涂料
项目时间:2017.4~2019.11
发表评论
最新评论
投稿
.jpg)
.jpg)
.jpg)