深圳景龙小学 | 非常建筑
来源:匿名网友投稿 2024-04-03
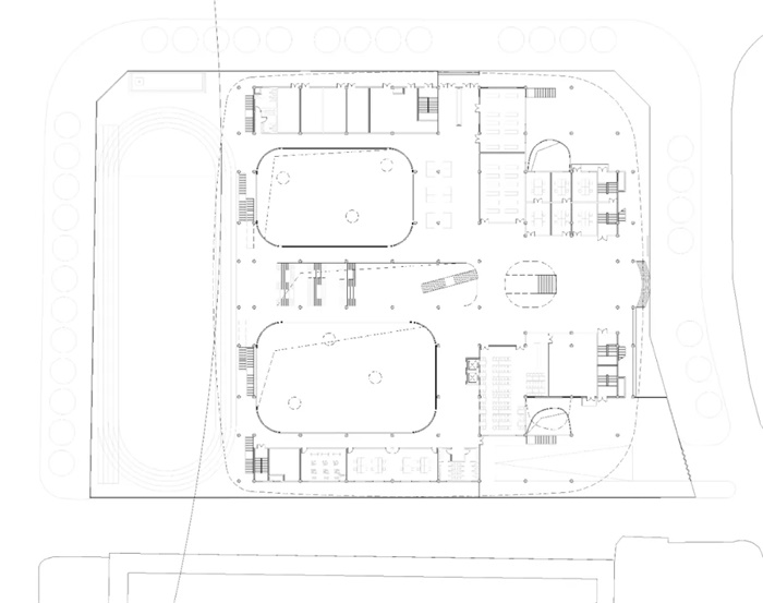
景龙小学位于深圳市中心的福田区,占地面积本来就偏紧张,四周又被高层住宅楼环绕。由于学校共有36个班级,校舍必须高达6层。对于高年级的学生来说,要在课间休息10分钟的时间里下到地面活动几乎是不可能的了。
既然学生下楼不方便,能不能将户外空间带到各楼层上去?于是在我们的设计中,在每一层的中心位置都出现了一个本质上是露天房间的区域:这个空间有上层的楼板为屋顶,但没有墙体的围合。
它像一个风雨操场,同学们可以在任何天气状况下,在这里锻炼、活动、玩耍;它还是一个开放的教室,老师们可以在这里授课、演示,同学们也可以在此自习、讨论。这个场所不但使学生体验户外又不必下楼成为可能,还提供了走出教室进行班级之间交流的机会。因此,这一系列没有被单一功能定义的半室外建筑空间恰恰构成了学校的社区中心微型广场。
由于用地的局限,我们也意识到有必要把绿化引到建筑立面上,于是用钢丝网作为每层开敞空间的栏杆扶手材料,便于藤本植物攀爬。
.jpg)
.jpg)
.jpg)
.jpg)
.jpg)
.jpg)
.jpg)
.jpg)
.jpg)
.jpg)
.jpg)
发表评论
最新评论
投稿


