ECADI,THAD | 中国国际进口博览会场馆
其他来源:建筑技艺投稿 2019-11-07
.jpg)
▲ 夜景鸟瞰图
作为国家级重点项目,根据国务院和部市领导“上海文化、江南特色、中国元素、国际气派”的十六字方针,华建集团华东建筑设计研究总院(以下简称“华建集团华东总院”)自2017年9月起,开始了进博会场馆——国展中心提升工程的设计总包工作,对既有的展厅进行重新布局和搭建装修,同时对建筑外部进行装点和环境提升。
功能提升
国展中心以双层场馆为主,拥有4个独立单元,通过8m标高的人行会展大道联成一体,总建筑面积达到147万㎡,包括40万㎡室内展厅和10万㎡室外展场。此次场馆功能提升以2层16m标高的西展厅作为国家会议中心(上海)主会场,左右分别是平行论坛分会场和国家馆,其余均为企业馆,另外配有大规模的新闻媒体中心、安保指挥中心和配套服务用房以及智慧公安等新增机电中心。
▲左:总平面图 右:6m标高平面图
主会场
可容纳2 000人的主会场弥补了国展中心大容量会议功能的缺失,利用原有展厅有效拓展使用面积,以提升展厅的综合利用及安全保障,为室内设计打下基础。主会场室内设计采用了现代的设计语言,吊顶通过层层叠级的造型,表达了富有代表性的中国高级建筑形式——庑殿顶轮廓,以类似白描的形式展现“大国风范”。古铜色的大门上镶嵌了如同玉兰花瓣的抽象图案,增添了“海派韵味”。
.jpg)
▲ 主会场
.jpg)
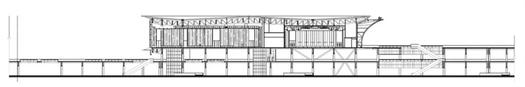
▲ 剖面图
迎宾大厅
迎宾大厅取义“绽放”,赋予进博会美好的愿景。天花造型展现出鲜花盛开的形态,中心的铜艺花灯典雅端庄,形成天圆地方的格局,成为空间的焦点。地面以金色线条勾勒出祥云的图案,迎接八方来客齐赴盛会。圆形的接待大厅采用向心的设计,营造祥和的环境氛围。吊顶中心的吊灯以装置艺术的表现手法,将一根百米左右长度的飘带交织成一个绣球,寓意“一带一路,团聚美满”。
.jpg)
.jpg)
▲ 吊顶细部
.jpg)
▲ 接待厅
平行论坛会场
平行论坛会场充分利用近20m高、2.8万㎡的展厅规模,搭建了4个各容纳近1 000人的会议大厅。设计理念集中国符号、江南特色和西方元素等融合形成海派风格,提取传统建筑的“人”字形坡屋面元素,以现代简约的设计手法体现传统韵味,四个会场分别取意“梅兰竹菊”,并以“水墨中国”的写意手法来表达设计思想。
.jpg)
▲ 平行论坛
环境提升
本次室外环境提升包括了国展中心整个外立面、主入口广场景观以及夜景灯光的整体提升,还涉及体量庞大的能源中心改造,使整体建筑焕然一新。
.jpg)
▲ 国家会议中心门前
庆典广场
12万㎡的南广场有序地排列了50余棵12m高的大香樟,高低有序的层次感凸显树阵气势;入口两侧矗立着的8根8m高的迎宾花柱,采用江南青花瓷瓶的造型,表面用浮雕手法,以绿色植物及彩色花卉勾画出八大名花主题;草地上密集摆放的金黄色盆花形成了气势宏大的花海;位于广场尽端的入口处近200m宽的大台阶上,以各色花卉拼出体现进博会的主题画卷作为背景。平台中央设置本次进博会会标,两侧中英文“中国国际进口博览会”字体雕塑形成整个广场的视觉焦点。
.jpg)
▲ 南广场
.jpg)
▲ 迎宾花柱
外立面
在原外立面疏密渐变的竖向柱间加入总计168种颜色、498片彩色金属“帷幔”。设计采用简洁的索网吊挂,如同薄纱悬挂空中,随着不同视角,“帷幔”颜色如同四季般交错变化,呈现幻彩效果。北面场馆采用嫩绿、嫩黄的颜色,寓意春季春和景明;西面场馆采用红、橙红的颜色,寓意夏季艳阳满天;南面场馆采用蓝绿、黄、橙的颜色,寓意秋季春华秋实;东面场馆采用紫蓝的颜色,寓意冬季粉妆玉砌。渐变的穿孔板既能成为遮挡展厅货运平台的装饰构件,又能起到节能效果,热烈活跃的色调成为迎宾礼仪通道上的靓丽风景。
.jpg)
▲ 格栅细部
国家会议中心主入口
会议中心主入口外立面设计理念取意“玉兰花开”,立面造型汲取上海市花“白玉兰”的柔美形态,与“四叶草”场馆理念一脉相承,包含和谐、生长、欢迎、开放的寓意。通过曲面形体的动感姿态,形成极具标志性、礼仪性和中心感的主入口形象,以开放、环抱的气势迎接各国贵宾。建筑材料上采用钛合金金属穿孔板,疏密相间的孔洞和光亮的表面反射呈现出现代、细腻的光影层次,彰显国际气派。
.jpg)
▲ 南广场入口
灯光艺术
夜景灯光效果作为本次环境提升的重点,加装了可控制、可编程的灯具,叶片边缘也做了加强设计,更突出建筑的整体感。夕阳西下,建筑主体在夜色中消隐,四周的金属帷幔逐渐亮起,春生夏长、秋收冬藏的故事随着各种调子或浓或淡,透过帷幔穿孔板闪耀着绚丽的光芒。
东南角的能源中心是进入国展的门户要道,通过横向渐变的白色幻彩金属格栅板,使高低不同的设备用房形成整体统一的关系,与对面横向肌理的建筑群一脉相承。局部旋转的格栅板内透出隐藏其中的垂直绿化,在LED屏的光色映衬下,灵动飘逸,犹如会呼吸的绿色表皮。
.jpg)
▲ 能源中心
本次进博会场馆设计经历了设计周期短、设计任务重、涉及专业广等多重考验,最终完成了华丽蜕变,赋予“四叶草”更加丰富的意义与记忆。
受访人: 张俊杰,华建集团华东建筑设计研究总院院长
.jpg)
AT:项目整体提升设计追求怎样的特色?如何体现“国际化”和“海派文化”的先进设计理念?
张俊杰:根据上海市委市政府领导提出的“上海文化、江南特色、中国元素、国际气派”的十六字方针和最高标准、最高水平的要求,此次设计着重体现“大国风范,海派韵味”的整体格调,运用简洁又不失细节的设计语言,将中国元素与江南水乡的特色相融合,完美呈现了隆重、热烈、喜庆、开放、美好的设计理念。
为实现上述设计理念,以大自然美好的四季景象作为本次功能提升改造的总设计构思,从而将原象征着结交四方、吉祥幸运、祈福世界的美好意愿与“四叶草”的建筑意象向巧妙融合在一起。在外立面柱廊间设置轻巧的竖向穿孔格栅片,四片四叶草立面的竖向格栅片对应四个季节的色彩并以幻彩艺术表现,建筑四周498片格栅共168种色彩,从而使对角直径长达800m的外观焕发了魅力与活力。
南面主入口广场以秋季为主题,以黄色花阵体现出金秋的丰收与缤纷色彩,主入口门廊24根圆柱表面渐变穿孔、內透LED光,体现二十四节气与节日气氛,其光与色平时也能随四季歌的音乐变幻。南广场通过花海、水景及一组8根龙泉青瓷甁形象的花柱寓意江南水乡美景。南广场的花柱饰以牡丹、玉兰、梅花等八种中国代表性的花饰。花柱、进博会吉祥物、主会场与平行论坛室内的庑殿顶轮廓、祥云地毯共同彰显了中国元素。会议中心外部形态也神似白玉兰花的抽象图案,线条优雅舒展。整体的设计风格现代、柔和、精致、轻盈,体现出江南元素与海派建筑的韵味。
AT:大规模改造从方案设计到施工完成仅用了200天左右的时间,场馆以及环境改造还存在很多不确定的因素,如何体现作为总设计方的总控、总协调作用,怎样实现高度“集约”的设计宗旨?
张俊杰:由于项目时间的限制,高度集约的设计与建设就成为一种必然。面对200天的设计和施工周期,项目团队一边深化研究方案,一边同步对已经落定的方案内容开展施工图设计,并通过协同上下游生产制作及施工企业,进行紧密的周期排布,确保了项目在极短的时间内按时交付。在此过程中,我们的总控、调控工作主要体现在以下两方面:
(1)清晰的组织架构和明确的责任分工,保证整体管理有序地推进。针对此次项目进度紧、子项多、接口复杂的特点,我院会同集团环境院及建设咨询公司并肩作战,设立跨专业的现场服务团队,实现集中办公、协同作战,与政府部门、现场施工、监理验收、运营管理等单位保持零距离无缝对接。在设计概念阶段,我们将后续施工、采购、验收等各个环节纳入方案考虑,每个环节相互搭接,以实现高效、紧凑的团队合作。现场服务团队定期召开设计与施工对接会,有效解决“问题梳理不清、措施有效性不高、问题处理及时性不够”等情况,借助现场巡视确保设计的实现度,从而满足施工进度要求。
(2)采用工厂化制作、现场装配的工业化建造方式,保证此次功能提升的高标准、高水平、高效率。如整体钢骨架在工厂完成预制后,再进入现场进行螺栓组装。除标准产品外,国展中心部分具有突出艺术效果的装置构件采用了工业化的制造理念与三维工艺设计及安装,达到产品质量和生成周期的全过程绿色化目标。三维设计、加工、施工等新技术的应用也让整个项目得以在短时间内顺利完工。在提升工程实施期间,国展中心其他场馆仍然正常运营。为减少对其他展览活动的干扰,保证市民的便捷性,在项目初期我们就通过项目施工范围的合理排布,保证会展运营与项目建设可以同时进行,最大限度实现了便民的目标。
AT:在您看来,未来会展建筑将与城市区域发展有着怎样越来越密切的关系?华建集团华东总院在会展项目领域有着怎样的理念和发展?
张俊杰:会展行业作为兼具经济效益和社会效应的产业,不仅能促进各国、各地区的经贸往来、文化技术交流,还能促进所在城市的整体进步。以此次进口博览会为例,如果将会展比喻为市集,进博会可以理解为在中国举办的一次国际经贸市集,交易的参与方、内容、规模、方式、物力、影响力在全球范围内都首屈一指,它的举办不仅加强了中国与全球贸易的融合度,也通过其集聚效应、品牌效应带动了上海乃至长三角地区的城市发展。可以说会展行业对城市及区域的形象树立、经济推动都有着积极意义。
中国会展业的高速发展也对会展建筑提出了更高的要求,为满足商务、金融、贸易、消费、物流等多个产业的需要,商业、酒店、住宿、办公以及其他配套设施也逐渐成为会展建筑的重要功能。我们将随着城市功能的提升,对许多会展建筑进行规模、功能、定位等方面的调整及提升,这是一个动态及不断优化的过程,正如此次国展中心整体形象的提升工作。
华建集团华东总院有一支各工种齐全、拥有国际化视野的会展设计及管理团队,承担了许多国家级的、地标性会展综合体项目。秉承会展经济与区域工作、生活、发展相结合的理念,我们在设计时将会展项目跟所在区域的开发、更新结合在一起,取得了显著的成绩。
近几年来,我们完成了众多会展综合体作品,如2014年5月亚信元首峰会在我院原创设计的上海世博中心内举行,我们承担的主会场提升设计确保了会议的成功举办;2018年9月, 我院经过两年多精心设计的南宁东盟博览会商务综合体在东盟峰会期间已部分投入使用,并成为南宁的城市新地标;我院最近原创中标了杭州国际博览中心二期项目,其他会展场馆和国际综合性活动场所也正在紧锣密鼓地设计之中。
受访人: 傅海聪,华建集团华东建筑设计研究总院总建筑师、设计总负责人
AT:请您介绍一下进博会场馆——国展中心的总体设计情况,以及给会展业在功能、经济、活力等方面带来的改变。
傅海聪:国展中心建筑面积超过147万㎡,规模和设施完全满足绝大部分会展活动的使用需求,但进博会绝非一般的展会,除了大量的企业馆还将设置国家馆,同时将举办论坛峰会并接待众多参展国首脑政要,这次盛会也是全球首个以进口为主题的博览会,又是中国2018年最后一个主场外交,场馆功能和环境必然要大大提升。
我们从2017年9月领受设计任务开始,就选址布局、策划定位、规模标准以及室内外风格形态,专门向市领导作了十多次方案汇报,前期设计工作就历时近5个月。从方案落地到施工完成,仅有200天左右的时间,时间紧、任务重。基于我们在世博会和国际峰会建筑上的设计经验,在国展中心的设计理念上植入了新的功能和形象,成功打造了一个设施完善且独具特色的博览会场馆。而进博会的举办也必将充分优化上海乃至中国会展业的布局和结构,进一步缩短上海与世界顶级会展城市之间的差距。
AT:国展中心与其他场馆相比有哪些优势?这次进博会功能提升的具体内容包括哪些?
傅海聪:国展中心净展览面积近50万㎡,当初普遍认为这种规模仅仅为了追求“世界第一”,而现实是开业四年来却面临着常常满负荷甚至使用面积不够的境况。单个展厅非常宽敞,“主力户型”近2.8万㎡(近四个足球场大小),灵活性很高。可容纳2 000人的主会场弥补了国展中心大容量会议功能的缺失,充分利用原有展厅的空间规模和形态,巧妙布局、高效分隔、竖向加层的设计策略有效拓展了使用面积,在保证安全的基础上实现了综合利用,为室内设计打下了坚实的基础。有三个场馆的净高超过30m,几乎是世界上最高的展馆。整个建筑多达16个展厅,而且每个展厅四边均可环通,展厅的布展和撤展得以同时进行,极大提升了展览的功能、效率和均衡性。
此次功能提升包括一个主会场和四个平行论坛会场和近20个分会场,以及两个空间形态各异的迎宾接待大厅等核心场所;另外,还配有大规模的新闻媒体中心、安保指挥中心和配套服务用房,增设了机电设备机房。环境提升包括国展中心整个外立面、各个广场景观及夜景灯光的整体提升,一个体量庞大的能源和电力站房也重新“改头换面”,整个建筑呈现出焕然一新的形象。
AT:对于面积巨大、功能众多、人流复杂、活动多样的国展中心,本次提升设计主要有哪些挑战?
傅海聪:作为国家级重点项目,挑战来自多方面,主要是如此超大规模的展会结合重大外事活动在上海之前也鲜有先例。国展中心项目功能提升起初的需求并不明确,只有一边摸索一边做。例如主会场的规划和设计经过了长时间反复的研究比选,既要满足使用和规模,也不能过多占用现有展厅的面积,还要兼顾安保等种种因素。由于建筑高度集约,展厅以双层为主,设置了展厅内外侧车道和位于8m标高的中央步行系统,立交设计使上下展厅形成互相独立、互不干扰的交通系统,使上层展厅具有与首层展厅同样的使用效率,并且还具有大跨甚至是无柱结构的特点,充分发挥首层至二层的专用车道可由各个方向到达所有展馆的优势。主会场和迎宾大厅最终定在二层16m标高的西展厅,左右分别是平行论坛会场和国家综合馆。主会场现已正式命名为“国家会议中心(上海)”,与国展中心一起成为一年一度的进博会永久举办地。
AT:建筑整体虽然体量巨大,但整体感、立面光影层次和韵律感都非常强,通过材料和灯光变化烘托出独特的氛围和建筑肌理,请介绍一下立面和灯光的设计和构想。
傅海聪:国展中心高效集约的新型会展模式塑造了独特的建筑形态,这次进博会在原来的基础上又进行了很大提升。总面积超过10万㎡的主广场通过迎宾花柱、金色花海与进博会会标吉祥物共同构成了一副“金秋丰收”的景象。特别是场馆原有竖向装饰柱间新增的近500片彩色金属穿孔板,形成轻盈飘逸的“彩纱”让整个建筑外观绚丽多姿,通过“缤纷四季,春华秋实”来寓意进口博览会的 美好愿景。这些竖向金属板不仅强化和丰富了原有的竖向建筑语汇,化解了建筑庞大的体量,而且在功能上也作为展厅货运平台的一道屏障,具有极强 的可识别性。夜景灯光结合屋面的建筑肌理用灯光塑造建筑的“芯”“脉”“形”,并通过智能控制展现不同主题,叶片顶上的LED线条灯以环绕形式呈现“CIIE”以及“I LOVE SH”等进博会主题字 样,成为上海熠熠闪光的城市夜景新名片。
会议中心外立面设计理念名为“玉兰花开”,立面造型汲取上海市花“玉兰花”的柔美形态,这一形态也取得了与“四叶草”理念的一脉相承,包含和谐、生长、欢迎、开放的寓意。立面提升是以全新的“玉兰花”主题的曲线元素重塑形象,来营造“盛世花开、热情绽放”的氛围。通过形体流线型的动感姿态,形成极具标志性、礼仪性和中心感的主入口形象,以开放、环抱的气势迎接各国贵宾。建筑材料上采用钛合金金属穿孔板,其现代、细腻的质感形成了丰富的光影层次,穿透力强的孔洞和光亮的表面反射优雅且气势宏伟,彰显国际气派。
AT:在华建集团华东总院的总控、协调下,项目采用了全周期的BIM应用,设计中的各环节、各专业是如何在BIM框架下协同工作的?
傅海聪:由于项目规模大、工期紧、参与方众多、协调难度大,BIM技术在国展中心建筑中得到大规模使用,也涉及了复杂的建筑、结构、水电、环控、消防等设施。同时,为了更好地实现业主、设计总包、施工单位等项目参与方的数据共享与信息交换,设计团队搭建了BIM管理平台,使各方能够及时、准确地进行沟通,协同工作。利用BIM模型创建的可视化平台为方案讨论、沟通交流、设计拍图、施工交底提供了巨大的便利,有效地节约了交流的成本。而本次设计对BIM模型在虚拟建造和漫游展示等方面优势的挖掘利用,更加真实地反映出设计意图,并以此为依据优化设计空间和流线,使设计比选更加直观和便捷。
.jpg)
项目信息
业主:国家会展中心(上海)有限责任公司
建设地点:上海市虹桥区
建筑设计:华建集团华东建筑设计研究总院、清华大学建筑设计研究院
面积:60万m2
摄影:庄哲
发表评论
最新评论
投稿


