北京首钢滑雪大跳台中心 | THAD清华建筑设计院
其他来源:THAD清华建筑设计院投稿 2022-02-08
设计单位 | 清华大学建筑设计研究院有限公司
建筑师 | 张利
地点 | 北京石景山
设计 | 2017 年
竣工 | 2019年
业主 | 北京首奥置业有限公司
首钢大跳台本体
设计团队
张利、窦光璐、江曦瑞、Bai Xue、潘小剑
结构及竞赛工艺咨询 | 戈建
施工图项目管理 | 孟繁星
结构及竞赛工艺设计 | 北京戈建建筑设计顾问有限责任公司
施工图合作设计 | 杭州中联筑境建筑设计有限公司、北京首钢国际工程技术有限公司
竞赛配套设施及制氧厂北区改造
设计团队
张利、窦光璐、Bai Xue、胡珀、聂仕兵(建筑);李果、潘安平(结构);徐青、翟莎莎(给排水);贾昭凯、刘慧丽(暖通);王磊、钟新(电气)
制氧主厂房改造方案设计 | Michele Bonino、都灵理工大学
竞赛剖面曲线及竞赛工艺顾问 | Joe Fitzgerald, Davide Cerato
景观设计 | 清华同衡规划设计研究院朱育帆工作室
照明设计 | 清华大学建筑学院张昕工作室(泛光照明)、玛斯科照明设备有限公司(大跳台竞赛照明)
基地面积 | 33.2h㎡
建筑面积 | 3.3万㎡
结构形式 | 跳台主体(钢结构),制氧厂北区(钢筋混凝土结构、混凝土结构、剪力墙结构等)
摄影 | 布雷

▲ 从新首钢大桥看大跳台局部

▲ 制氧厂主厂房改造和看台

▲ 大跳台夜景局部
大跳台底部空间

▲ 大跳台赛道局部

▲ 大跳台、广场及制氧厂主厂房

▲ 制氧厂车间改造F楼

▲ 冷却泵站及制氧厂主厂房外景

▲ 制氧厂北区东南向外景

▲ 总平面

▲ 1-1剖面

▲ 2-2剖面

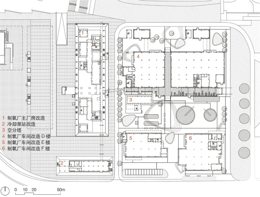
▲ 制氧厂048地块平面
▲ 制氧厂048地块南立面
01首钢滑雪大跳台及群明湖周边总体规划
首钢工业园区改造是中国北方最具雄心壮志的工业遗产改造项目,旨在让这座百年历史的钢厂回归市民生活,使城市与永定河重新连接起来,并恢复自然环境,对城市地区影响范围达10km²。整个项目于2010年左右启动,计划在2030年完成,包括一系列适应性再利用和能源转换项目,以体育、休闲、文化和其他公共项目为引擎。作为北京2022年冬奥会北京赛区的场馆分区之一,首钢园区及京能园区包含1个竞赛馆和5个非竞赛场馆。首钢滑雪大跳台是其中唯一的竞赛场馆,它将举办北京2022年冬奥会的单板滑雪及自由式滑雪大跳台(男子、女子)比赛,产生男女共4枚金牌。
首钢滑雪大跳台是全球首个坐落在工业遗址内的冬奥会场馆,也是首个滑雪大跳台的永久性竞赛设施。首钢滑雪大跳台的规划设计将冬奥会场馆与原大型钢铁厂的一个关键部分改造结合起来,包括制氧厂、冷却泵和空分塔,沿工业晾水池—群明湖岸线布局。单板滑雪赛道位于由4座标志性冷却塔形成的风影区内,其结束区和近6000座观众席的一部分沉入湖面标高以下,制氧厂北区则改造为北京2022年冬奥会观众服务中心(图1、2,表1)。

图1 从新首钢大桥看首钢滑雪大跳台及首钢园区

图2 项目区位

表1 首钢滑雪大跳台相关数据
单板滑雪大跳台是冬奥会一项相对较新的运动,于2018年平昌冬奥会上首度成为冬奥会的正式比赛项目,并在阿尔卑西亚跳台滑雪中心(Alpensia Ski Jump Stadium)举办。这个竞赛场馆早在2009年平昌尚未获得举办权时便已建成,用以满足申办奥运会的需求。相关研究表明,由于缺乏赛后利用计划、缺乏场馆建设统筹,该场馆在可持续方面饱受质疑,而跳台运动的专业性和大跳台的专门性特征,使非专业竞技者较难直接使用,亦是客观存在的可持续难点,如无前期对场馆及附属设施的可变性规划设计,极有可能出现如平昌奥运会后阿尔卑西亚跳台滑雪中心长期空置无用的现象。这些“前车之鉴”促使首钢滑雪大跳台从规划、设计、建设和运营等各方面积极回应超大型体育赛事带来的场馆规划设计的可持续问题。
本文将借助全尺度空间干预理论,系统分析首钢滑雪大跳台的可持续性设计策略,以期为今后以可持续性为导向的奥运场馆建设提供借鉴与参考。
02全尺度空间干预视角下的首钢滑雪大跳台可持续设计策略
从全尺度空间干预的视角分析,首钢滑雪大跳台及群明湖周边规划设计大致可涵盖宏尺度、远尺度、中尺度和近尺度4个尺度层级范围,涉及对城市独特风貌的延续、百年历史工业园区的产业转型、竞赛场馆的运营规划、对结合遗产再利用的场馆及其附属设施的设计建设,以及为运动竞技高水平发挥的赛道剖面可变性预留等方面(图3)。

图3 首钢滑雪大跳台可持续相关性矩阵
2.1 宏尺度设计策略:首钢新天际线的营造
首钢工业园位于北京市石景山区西南部,永定河畔的石景山东麓,长安街西延线的尽端,是首钢集团原北京工业园区,其近百年的发展是中国钢铁产业从无到有的缩影。2010年,在首钢集团为响应国家战略与钢铁业结构优化升级需求迁往河北后,其主厂区内留下的大量工业构筑物,具有特殊的遗产价值,形成了北京城西部独特的城市风貌。首钢滑雪大跳台的设计,通过对选点、方位等多方案比较分析,选择出跳台本体与4座高达70m的冷却塔的最佳组合,使其共同构成北京西侧新的天际线(图4)。设计方案对跳台本体的高度进行了严格控制,将赛道与观众席部分下沉至水平面以下3m,使跳台最高点不高于冷却塔最高点,实现了对首钢工业记忆的延续和对北京城市西部独特城市风貌的保护(图5)。

图4 跳台与冷却塔关系示意


图5 改造前后群明湖东岸天际线
2.2 远尺度设计策略
1)奥运场馆选址与工业遗产直接结合首钢滑雪大跳台是世界首个与工业遗产再利用直接结合的奥运场馆。在生产功能转移后,首钢工业园区处于空置状态,大量工业遗存情况错综复杂,遗产的保护与更新存在诸多矛盾问题亟待解决。奥林匹克运动为首钢工业园区的产业转型、工业遗产的更新改造提供契机。“奥运”冰雪产业发展与首钢工业园区相结合,带动了北京西部地区的基础设施建设和社会经济的发展,如轨道交通S1线、M6西延线以及轻轨M11、苹果园交通枢纽等;通过冰雪运动赛事和城市文化活动的举办,首钢滑雪大跳台及其附属设施为园区带来了数以百万计的观众与游客,激活了产业园区,加强了园区与社区、城市的关联。大跳台也将成为2022年冬奥会和首钢园的重要遗产。此外,首钢工业园区的地理位置与园区风貌对单板大跳台项目的举办具有积极影响,其独特的城市风貌,也为北京2022年冬奥会单板跳台项目以及城市文化活动等的举办增加了独特的记忆点,使其具有形成城市品牌的潜质。
2)工业晾水池改造首钢工业园区毗邻永定河岸,长期的工业生产对局部区域的土地与水系生态存在负面影响。因此,在首钢滑雪大跳台及群明湖周边的规划设计中,包含了对土壤修复与水体水质改善的考虑,旨在营造对城市、社区、人的健康有益的城市绿地与水环境。
规划设计涉及水域景观修复面积逾21hm²,该水域“群明湖”为首钢园区最大的水体,是原工业生产提供水源的大型基础设施,储水量达94万m3。结合对工业晾水池的水域生态改善,设计将原先规整方正的水岸线进行拓展变化,经过精确计算将水体面积适当缩小,增加5hm²的绿地空间,形成丰富多变的群明湖景观节点序列,为城市居民提供多种形式的亲水空间(图6、7)。同时,基于群明湖开阔的景观视野,设计围绕群明湖组织了长约3364m的健身步道,使市民在活动之余,可以领略连续且变化丰富的现代工业景观体系;结合原有的工业构筑物遗存,设计形成长约730m的“高线公园”(图8),并保留其扩建的可能性,为市民提供眺望整个工业园区的视野平台。

图6 改造前后群明湖岸线变化分析(蓝色为新增临岸亲水空间)

图7 群明湖北岸亲水空间

图8 高线公园总图示意
2.3 中尺度设计策略
1)跳台本体的中国文化元素表达从北京市总体规划来看,新首钢园区是北京东西主轴长安街的一级节点,是城市复兴的新地标,这对新置入的竞赛设施提出要求:融入具有一定形象辨识度的中国文化元素,以突出北京城市的文化地位。滑雪大跳台起跳点和落地区的两段弧线,形成了一条具有丰富变化的曲线,该曲线形式赋予大跳台表达中国元素“敦煌飞天”的契机(图9)。在飞行曲线路径上,运动员腾空最高处两侧,要求防护网高度必须高于腾空高度2m,“飞天”飘带形式有效地兼顾了跳台两侧防风及支持防护网的作用(图10)。两段弧线飘带采用特殊的空间异形桁架结构,分段制作、管桁架胎架搭设,并采用数控技术以确保精度、减少耗材。此外,奥运竞赛设施的文化元素表达,也为其与城市活动的结合创造机会。例如目前已举办的首钢园灯光秀表演便以“冰雪飞天”为主题之一,每场演出现场观众逾5000人,演出得到北京电视台、中国日报等大众媒体的一线报道,并在对外国际媒体上进行广泛传播,备受热议(图11)。

图9 飞天意象

图10 大跳台及局部防风防护网意象草图

图11 “冰雪飞天”主题灯光秀
2)满足多种功能的旧厂房改扩建对首钢工业遗存的修缮、改造和利用是本项目可持续的重点之一。通过详尽调查首钢老厂房和工业构筑物的价值、现存状态(图12),在最大限度保留原有建筑风貌前提下,设计将制氧厂主厂房、冷却泵站和空分塔等工业构筑物转化为满足民用建筑设计规范且能够为奥运服务的建筑,改造有效实现每年减少20万t的CO₂排放。

图12 制氧厂北区原貌
其中,制氧厂主厂房的设计保留了原建筑工业面貌,在原建筑结构基础上进行加固,以延续建筑的使用寿命;原建筑地下一层、地上两层,改造后厂房内部新建6层,满足赛时的观众服务中心以及赛后的体育办公休闲等功能。冷却泵站同样是在保留原建筑工业面貌、原建筑结构的基础上,进行加固以延续建筑使用寿命;设计保留原建筑设备(冷却塔)层,改造其中4组冷却塔,服务制氧厂北区的制冷制热功能(图13)。空分塔部分,设计保留了钢框架结构,在原塔体四周新增7根钢柱,其中4根在原空分塔基础上生根,3根在新增基础上连接,为通向塔顶的室外楼梯提供结构支撑。改造后的空分塔将在赛时为OBS提供转播平台,赛后作为观光瞭望塔服务市民(图14)。

图13 改造前后冷却泵站

图14 改造前后制氧厂北区和空分塔
除了对必须保留的构筑物进行修复和再利用,基于原工业厂房遗址肌理研究,新建3层建筑,以延续工业记忆,为赛时、赛后提供配套设施。设计还对场地内的工业遗产构件分两类处理:1)红色:将卧罐、液罐作为工业记忆予以保留,在确保原工业液罐安全性的基础上,结合构件营造一系列景观节点;2)蓝色:因场地空间限制,以及施工过程中对施工界面的要求,场地原有工业构件结合景观铺装进行设计(图15)。

图15 工业遗产构件根据不同情景分类处理
3)跳台及附属设施的全季利用2018年平昌奥运会阿尔卑西亚跳台滑雪中心由于缺乏明确的场馆赛后利用计划,设计之初对空间可变性欠缺考虑,赛后,场馆与当地社区居民生活缺乏联系,以致完全闲置,高昂的维护成本也给当地财政带来负担。另外,赛道结束区原本计划与一个足球场相连,用来举办开闭幕式,然而开闭幕式职能在开赛前改由另一新建临时场馆承担,使得总支出额外增加逾1.075亿美元(包括建设与拆除费,约合人民币6.91亿元,由于仅使用4天,日均支出达人民币1.73亿元),造成极大浪费。
在首钢滑雪大跳台及其附属设施的设计最初,对赛时与赛后的运营进行了充分考虑,以满足其长期的使用需求。除了满足冬奥会比赛的各项要求,赛后滑雪大跳台还可承办如FIS沸雪世界杯、世界锦标赛等国内外大跳台项目比赛(图16),为专业运动员和运动队提供全季训练场地,以及作为青少年后备人才的选拔基地、赛事管理人员的培训基地等使用,推广单板滑雪大跳台运动,服务中国冰雪产业发展。如红牛公司从2011年开始组织的名为“红牛400”的400m滑雪跳台爬坡赛跑活动,也可在此举办。与此同时,群明湖公园还将成为对市民完全开放的体育主题公园、有冬奥会标志性景观的旅游景点。设计还为赛道、看台和体育广场保留了可变性:赛道在建设时预留出水口,具有改造成滑水、滑草场地的潜力;观赛看台具有的氛围照明系统,使其举办演唱会等活动成为可能;跳台下方的广场具有多种用途,如2019年全球志愿者招募活动、2021年元旦晚会分会场等,此外还包括市民自发组织的广场舞等活动,使大跳台与城市、社区生活紧密衔接,成为北京城市西部夜间休闲颇具吸引力的场所。

图16 2019沸雪北京世界杯比赛现场
2.4 近尺度设计策略
1)装配式建造方案大跳台主体结构采用装配式钢结构体系和预制构件,优化钢结构计算,节省用钢量。除基础、看台、泵房结构以外,首钢滑雪大跳台中心主体结构、幕墙等均为金属预制构件,预制构件率达到87%以上,工期缩短近30%。同时采用就近选材、模块化拼装、开辟专用运输通道、提高装载效率等措施减少安装过程中产生的能耗20%。
设计选用高强度钢、耐候钢以减少材料用量,最大可能使用工厂化产品与再利用材料:大跳台主体结构用钢4100t,99.55%采用高强度钢,其中高建(GJD)钢637t,占比18.3%。赛道面板采用耐候钢360t,占比7.5%;裁判塔裁判层选用耐火耐候钢,占比2%。通过优化组合,节省用钢量9.75%,节省防火涂料用量27%,减少碳排量约950t,同时满足了载荷和使用寿命要求。
2)预留赛道剖面变化的可能性跳台基于现有剖面实现人工剖面可变赛道,在世界杯及以上级别单板大跳台与空中技巧比赛的FIS认证剖面转化,满足不同赛事对赛道的要求,为实现基于同一场馆跳跃类项目训练、比赛共享提供技术支撑,为该项目单相组织研究赛道剖面变化提供实验场地(图17、18)。

图17 赛道转换可变剖面研究试验段

图18 首钢滑雪大跳台可变竞赛剖面曲线
设计采用新型空间四面体模块组装,通过横向转换构件与原主体结构上预留的固雪网节点连接,根据国际雪联提供的空中技巧剖面曲线,该变化曲线大约需要1100个模块组成。考虑压雪车荷载,数量较多的模块传给下部结构的荷载均匀分散,也增加了装配结构的安全性。转换技术为施工提供了便利,人工拼装可在24小时内完成赛道转换。该技术组装模块目前正在申请5项专利。
3)部分可拆除看台观赛看台设计保留了部分拆除的可能性,可移除坐席占整体看台的42.1%(图19)。除满足延续京西天际线、跳台全季利用的需求外,在近尺度上,该策略对水域景观营造作出充分退让,以保证水岸线上人视景观的完整性和连续性,为行人提供清晰而独特的滨水视野,以充分游览、体验具有现代工业特色的遗址景观。

图19 大跳台结束区和看台
4)安全舒适的裁判塔空间作为首个永久保留的滑雪大跳台竞赛设施,首钢滑雪大跳台考虑了具有围护结构的裁判塔设计,旨在提升裁判员在比赛过程中的安全性和舒适度。大跳台的运动员起跳区南侧设计了高22.6m、落影面积112m²的封闭裁判塔构筑物(图20)。裁判塔采用钢结构设计,在耗材较小的情况下,使裁判在比赛中不必受到不稳定的风环境、热环境的干扰,更加精准、高效地完成裁判工作,降低了环境物理因素对奥林匹克竞技运动的公平性的干扰。

图20 左侧为封闭裁判塔
03结语
为了回应北京2022年冬奥会全面可持续性的诉求,首钢滑雪大跳台及群明湖周边的规划设计以首钢工业遗产的适应性再利用为契机,在宏尺度上,以重构北京西部天际线、延续首钢工业记忆为目标;在远尺度上,注意奥林匹克运动结合北京西部的经济发展以及工业园区的产业转型升级需求,以景观营造、水体养护、慢行系统构建等为核心,实现工业区域的生态恢复;在中尺度上,一方面,跳台本体的中国文化元素表达有助于增强城市居民的文化认同感与自信心,另一方面,对工业厂房的改扩建则体现了对工业遗产保护和利用问题的回应,以全季利用为运营理念,平衡奥运场馆设施建设的赛时与赛后可持续,并开放园区,以文化活动服务城市与社区居民日常生活;在近尺度上,对赛道剖面的可变性保留、裁判塔空间的安全性与舒适性、部分可拆除看台、装配式建造方案的考虑,旨在最大程度地激发运动员的竞技水平,同时满足裁判员的安全性和舒适性需求,从建设与使用的各方面践行可持续,使首钢滑雪大跳台及群明湖周边改造,能够为北京城市更新提供一个可供参考的积极案例。
发表评论
最新评论
投稿
.jpg)
.png)