上海吴淞口国际邮轮港客运楼 | 同济大学建筑设计研究院
其他来源:同济大学建筑设计研究院投稿 2021-04-29
1 从海防要塞到国际邮轮港
吴淞口,因曾为吴淞江入长江之口,故得此名。其位于黄浦江与长江汇流处,东距长江口30余千米,北与崇明岛、东与长兴等岛隔水对峙,扼长江主航道翼侧,为上海、南京的通海门户。明洪武十九年(1386年)设吴淞江守御千户所,嘉靖年间设总兵。清顺治初改吴淞营,置战船驻守。此后,在河口两岸先后筑有东、西炮台,南石塘南、北炮台和狮子林炮台,置各种口径火炮30余门。“中华民国”元年(1912年),称吴淞要塞。吴淞口战略地位重要,历史上多次为外国侵略者入侵之地,至今都一直是中国东海重要的海防要塞。
近年来,随着海上旅游产业的迅速发展,吴淞口凭借自身重要的历史地位和地理优势,身份也随之转变。江口的景象从军舰到邮轮,从炮台到公园,从海防要塞到邮轮码头,现在已经成为国内最大的国际邮轮客运交通集散枢纽。上海吴淞口国际邮轮码头一期工程于2010年建成,经过多年的发展,其业务量逐年大幅度提升,目前已成为世界第四、亚洲第一大的邮轮码头。原有的一期建筑和港口既无法满足日益增多的邮轮靠泊要求,也无法满足日常巨大客流的使用需求。根据对2020年吴淞口国际邮轮码头的邮轮旅客吞吐量和邮轮靠泊艘次的预测,在原有两个泊位的基础上再新建两个大型邮轮泊位。项目总建筑面积为55 408 ㎡,完成后三座客运楼总建筑面积达到近8万 ㎡,基本上可以满足四船3.8万人次/日旅客的出入境需求。
.jpg)
.jpg)
.jpg)
邮轮港作为上海面向世界海洋的一个重要窗口,影响着海上游客踏入上海的第一印象,也是陆地游客驶向海洋的最后驻留地。而客运楼作为一个海陆交通枢纽与旅游集散中心的存在,它的游客体验性和风景融入性如何恰当地用空间与形式语言描绘,是设计的重要考量。
2 风景与意象
风景(landscape),作为被广泛使用的中文词汇,在日常使用中多指供人观赏的自然景象。从建筑学层面看,风景和建筑有着密切的联系,是基地和此处的历史文脉、地理环境等提供给人们的所有场所信息,通过重构解读而形成的对场所的认知。设计之前,看看“此地”的地理文脉与时间线索,寻求建筑与它们之间的关系,以求获得建筑的恰当性。
.jpg)
.jpg)
.jpg)
.jpg)
基地位于吴淞口炮台湾公园对面的水上平台两翼。不同于普通的海港邮轮中心,考虑到邮轮吃水深度,基地水工平台是通过800多米长的引桥深入到长江内部,形成平行于岸线的线型靠泊平台。从公园远远望去,整个邮轮港被映衬在纯净的自然背景中,像漂浮于水面一般。长度接近1 500 m的平台,在浩瀚的江面上如沧海一粟——建筑规模与大风景的尺度形成了巨大的对比。因此,探讨项目以何种意象、何种姿态呈现在浩瀚的大自然风景下,成为设计的出发点。
蓝天碧水与邮轮码头、原始自然风景与高度工业文明如何共存一处?我们试图去捕捉二者之间的联系,将新建的客运楼融入此地的文脉,既体现了与城市的呼应,又对大自然充满敬畏。本着这样的初衷,建筑师提出了“海市蜃楼·海上画卷”的意象。海市蜃楼,在这个夹在城市与江面之间的位置,希望建筑能恰当地介入,既回应城市的需求,也融入大自然;海上画卷,试图通过轻盈的姿态、渗透的界面与淡雅的色调来呈现这一意象,让建筑成为吴淞口风景的一部分。
3 现状与策略
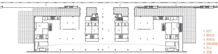
在我们介入此建筑项目之前,水工平台和建筑结构柱位已确定,结构桩基已基本完成。水工平台宽度为80 m,且有诸多不规则的分缝,基础结构柱网为14 m×11 m。对于一个国际邮轮母港的客运楼建筑来说,原水工平台宽度和柱跨都过小,不甚合理。柱网、荷载和结构形式的限定,对本项目的功能组织和空间建构提出了很大的挑战。我们试图在苛刻条件下,通过巧妙的流程与空间组织、精确合理的建构,不动声色地为游客提供一个愉快的乘船与游览体验。
在原水工平台宽度有限和柱网已定的条件下,如何解决建筑两端穿梭车道的问题成了影响建筑形态的一个重要因素。根据流线与功能的要求,建筑主体分为三层,底层为行李空间,上部两层为过关等候空间。因主体建筑的长度基本被已有结构限定,为了获得合理的区域车行交通组织,结合现有柱网结构,通过将底层行李空间往外错动的方式提供檐下连接两端的车行通道。上部两层在面向城市一侧,以卷曲的画卷姿态呈现,提供一个向背后城市展示的界面;面向江面一侧,则从游客体验角度考虑,采用通透的全玻璃界面,提供开阔的自然景观视野。设计从剖面出发,解决既有现状问题的同时,建构了整个建筑的基本空间形态。
.jpg)
4 尺度与界面
从城市职能方面来讲,邮轮港客运楼接近于机场,是接驳游客换乘的大型交通枢纽,但是在建筑与使用对象物的尺度对比方面,截然不同。以此港目前停靠的最大邮轮——海洋量子号邮轮为例,其长达348 m,可容纳4 180名乘客,甲板以上有11层,与178 m长的客运楼形成了强烈的视觉反差。某种程度上,客运楼只是进入邮轮门厅的过渡空间。在如此庞大的背景物下,客运楼只有以一种简洁、完整的姿态呈现,才能避免失去其存在感。
水工平台宽度的限制,使得游客基本无法近距离参与建筑两侧的界面,因此两侧以整体的方式分别向城市与江面展现出建筑的姿态。而在建筑的两端,为了化解主体建筑完整性与游客体验性之间的尺度差距,设计考虑在游客可近距离参与的界面建立一个过渡尺度。因此,在建筑出入口外采用深挑檐与大面积透明玻璃来构建一个渗透性的界面,柔化了游客进、出建筑的体验,同时自然地营造出独特的建筑入口空间场所。
5 空间与光
作为邮轮的客运楼,短时间的巨大人流是运营的常态。为了缓解内部游客拥挤的空间感受,建筑师在二、三层设置了整个沿江面的边厅空间,使游客在通过不同等候和联检空间时,能够获得一个空间感受及视觉高度上的释放。结合内部通高空间,建筑南立面与屋顶形体通过三维曲面联系成为一体,进一步强化了建筑形体的纯粹性与室内空间的趣味性。几何抽象的山水画图案,通过三角形洞口的渐变,赋予了立面灵动的表情。三角形开洞的铝板幕墙系统通过定制的隐藏式节点构件,保证了内外形式的一致性。作为结合朝向岸侧的表皮,山水的表皮作为一种符号语言,不仅在城市视角提供了一个建筑的识别性特性,同时作为边厅空间的“光筛”,当南侧的光线穿过不同大小的孔洞撒入中庭时,整个中庭空间也被洒满了婆娑的光影。随着一天时段的不同,借助江面的反射,婆娑的光影随之摇曳,十分动人。透过项目底层一片开敞的玻璃幕墙,也能眺望远处的湿地公园和城市景观,使游客得到心理和身体上的放松。

6 结语
风景赋予人类对美好的想象,人类用想象力回馈风景。从最早模糊的意象到空间界面的选择,再到内部环境和材料的建构,我们在各个层面反复对此地风景给予回应,选择恰当的介入方式,希望这样一座在蓝天碧水之间生长出来的“海市蜃楼”,可以成为此地风景的一部分,为全世界的游客带来对于海洋风景的憧憬。
项目名称 | 上海吴淞口国际邮轮港客运楼
业 主 | 上海吴淞口国际邮轮港发展有限公司
建设地点 | 上海吴淞口国际邮轮码头
设计单位 | 同济大学建筑设计研究院(集团)有限公司
建 筑 师 | 曾群
设计团队 | 吴敏,曾毅,方尔清
建筑面积 | 55 408 ㎡
设计时间 | 2015年7月~2016年12月
建成时间 | 2018年7月
图纸版权 | 同济大学建筑设计研究院(集团)有限公司
摄 影 | 邵峰
发表评论
最新评论
投稿

.jpg)
.jpg)
