中国院作品 | 北大附中实验中学设计
其他来源:中国建筑设计研究院投稿 2020-01-21
.jpg)
北大附中实验中学的设计需要解决两个问题:一个是如何在非常局促的空间中解决教学功能,这是如今高度密集的城市普遍存在的问题;另一个是如何在北大深厚的历史文化底蕴中创造富有活力的场所,这是在城市历史区域处理共性与个性平衡的问题。
小中见大的空间策略
基地位于北大园区内,场地狭小局促,基地东北角的图书馆是需要保留改造的,200米跑道和100米直道是必须满足的功能要求。
把操场抬起来放到屋顶不失为一种方法,但周围是密集的多层住宅区,操场抬高势必影响住宅日照不说,对居民视觉和心理上的影响也是不容忽视的。因此,只有华山一条路了,在螺蛳壳里做道场,期望以小中见大的策略拓展无限的空间可能,提供多维的活动场所,成为丰富多彩校园生活的发生器。
.jpg)
总平面图
所有的教室都需要满足日照条件,中学教学楼不允许超过四层,设计首先是一道数学题和日照题。按照最规整高效的方式把图书馆、教学组团、实验室、体育室、阶梯教室以及学生活动室等多种功能体围绕操场组合成U形体量,让东西南的阳光都可以照亮每个教室,并尽量空出更大的空间给校园内部。
.jpg)
形体的生成与细化
.jpg)
学校成为教学功能的集合体
.jpg)
教学功能密集组合后留出的操场空间
.jpg)
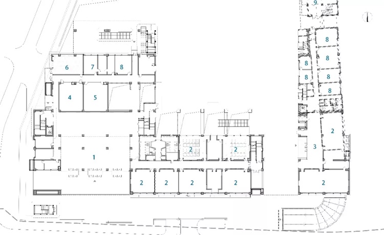
首层平面图
1 主入口门厅 2 实验室 3 次入口门厅 4 网络中心 5 体育器材室 6 消防控制室 7 医务室 8 办公室 9 图书馆
已经无法退出一个通常意义的入口广场了。于是就内凹出一个层层叠进的灰空间,面对着通透的入口中庭,长条形建筑体量立时显出从容与生气。
.jpg)
教学楼主入口
.jpg)
入口内凹形成的灰空间
.jpg)
门厅的影壁,在隔与透之间,让层叠式的公共空间产生丰富的交流
已经无法再开发贵如金的地面资源了。于是就向地下发展,地下一层的体育馆前辟出一方梯形的下沉庭院,上方是抵抗侧推力的一道道混凝土花槽,形如提花梁,确有种植作用。大报告厅悬挑在半空,天上地下遥望,绿叶摇曳半空,在这个阳光洋溢的空间里欢笑的孩子们应该是幸福的。
.jpg)
下沉庭院
.jpg)
引入自然采光
教学楼屋顶设计成了种植园,供学生开展教学活动,施工期间这里成了菜园子,施工单位收了第一茬绿色蔬菜后便请校方和我们尝了鲜。
针对北大附中“走班制”的创新教育理念,我们把教学楼的楼板进行适当挖空,形成上下通透的小中庭,形成灵活流动的建筑空间和“教学组团”模块,提供多种教学使用模式,提高了学生、老师的交流机会。
.jpg)
剖面图
.jpg)
公共交流空间
.jpg)
小中庭提供的交流空间
传统与活力的情景对话
灰砖灰瓦的古朴典雅,是北大校园突出的特质。我们采用实体灰砖在传统砌筑手法基础上进行建构创新,通过每层设置的混凝土挑沿承载每层横砌的实体砖,并在窗下墙以竖砌出挑的方式获得精细的砌筑感。
.jpg)
墙身构造示意图
.jpg)
实体砖竖砌出挑
当时望着施工中已经泛碱的砖墙,我有一种意外的欣喜,特地嘱咐施工单位千万不要清洗,感谢他们的理解,保留了这些“老”墙的“岁月沧桑”。下沉庭院的素混凝土墙体现材料的真实和空间的纯粹,简约质朴。施工地基时挖出的几十块条石也被我们特意保留了下来,作为草坡上的石凳,保留了场地的记忆。这些质朴真实的材质使得整个校园呈现出历史的厚重,传承着北大的百年底蕴。
.jpg)
灰砖的外立面,承袭了北京大学百年名校的基因
室内的局部墙面延续了室外的灰砖,但是大的色彩基调已经转为白色,并且运用明亮的彩色构成,符合青少年的心理特点,还起到引导方向、提示管线、强调灯具、形成聚焦的作用。色彩从室内又一直延伸到室外,室内外融为一体。
.jpg)
室内明亮的色彩
.jpg)
标准走廊
.jpg)
标准教学空间
.jpg)
统一的灰色外立面中透出绚丽的室内色彩
地下餐厅中必须保留的几片剪力墙,似乎成为了开放空间中的障碍。我们灵机一动,把这些墙体进行界面强化,形成一个个就餐包厢,并以不同的颜色区分。投入使用之后,校方告诉我们,这些彩色盒子成为每个班级学生就餐时最受宠爱的专属地。
.jpg)
.jpg)
食堂里的彩色盒子
地下餐厅一侧长方形下沉庭院上方的几道彩色拱梁是和校长多次“交涉”后的产物。原本我一直坚持素混凝土效果,强调空间的静谧与仪式感。校长的一句话“你不要把这里想象成研究院”让我一下释然,当场同意,并进一步提出从橘黄到红色退晕形成“彩虹门”的想法。一拍即合。
.jpg)
下沉庭院的“彩虹门”
小中见大的策略,让校园生活拥有了更多空间可能和体验;青砖灰墙包裹下的白墙幻彩,使得传统与活力在此碰撞;建筑在这片充满历史的场地上再生,历久而弥新。
.jpg)
工程地点:北京市海淀区
建筑面积:31314平方米
建成时间:2019年
方案设计:杨金鹏 刘德 陈帅飞 李健宇 王霖硕 贺小宇
设计主持:杨金鹏 刘德
建 筑:杨金鹏 刘德 余恺 杨子孚 郭佳 王玮 代亮
结 构:张剑涛 孙亚 于健
给 排 水:王松 尹腾文
设 备:李娟 张凡
电 气:史敏 汤纪元
总 图:齐海娟
室 内:曹阳 李毅 刘奕 曹诚 李甲 刘子贺
景 观:董强 邵宗博 于超 张艳杰
建筑摄影:李季 陈鹤
发表评论
最新评论
投稿
.jpg)
.jpg)