中交CBD
来源:网友Dead_Gorgeous投稿 转载自:这方建筑师事务所 2014-12-01
项目类型:园区,规划
年代:2014
项目状态: 概念规划
规划面积: 630,000平方米
业主名称: 中交建设
设计时间: 2014

效果图(一)
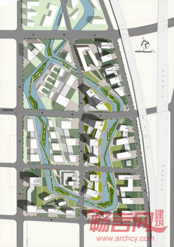
“水绿交织”的概念,暗示武汉作为九省通衢交通枢纽大背景,同时又紧扣中交建设的业务核心“交通”。

效果图(二)
交织的水+绿带贯穿 I、II、III期,形成建筑CBD园区特色主轴。水系、绿岛、港、桥将各地块联系,打造出互联网时代的建筑CBD。

效果图(三)

效果图(四)

平面图(一)

平面图(二)
发表评论
最新评论
投稿