银川阅海万家规划
来源:匿名网友投稿 转载自:绿舍都会建筑设计公司 2015-11-23

效果图(一)
项目名称:银川阅海万家规划
地点:中国宁夏银川
面积:146 700平方米
甲方:银川建发集团

效果图(二)
介绍
阅海万家商业区综合体规划旨在将商铺、餐馆、休闲、博物馆、酒吧、KTV、电影院、酒店和儿童游乐园等不同业态功能组合在一起。本项目由绿舍都会公司担纲设计,设计单位有能力打造一个新的魅力娱乐之都,为所有消费群体提供服务。利用欧洲城市肌理,再叠加对该城市有深厚历史影响的西夏国王拓拔元昊的印章设计,形成有趣的空间布局,供所有年龄层的人享用。

效果图(三)
银川市为地处中国西北的大型城市,有着深厚的历史底蕴和丰富的多元文化。因为有大量的穆斯林文化存在,我们在这里可以近距离感受阿拉伯世界。

效果图(四)
另一方面,我们将三种不同文化组合起来,创建了三个氛围不同的广场:现当代建筑时尚广场、古欧式广场和穆斯林式广场。这些空间组合起来形成总体规划,为游玩家庭享受不同文化提供了全新的综合空间。

效果图(五)

效果图(六)

效果图(七)

效果图(八)

效果图(九)

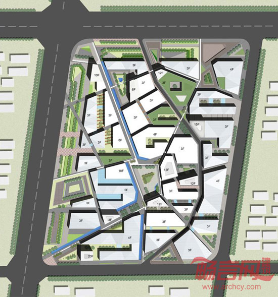
平面图
发表评论
最新评论
投稿



